- Jump to:
- All (4)
- Floor plans (2)
Key Specs
5083
sq ft
4
Beds
4.5
Baths
2
Floors
2
Garages
Phone: 1-866-445-9085
See our Terms & Conditions and Privacy Policy.
Use Code CTBFALL
Residential Construction Guide
Learn Building Basics
This downloadable, 26-page guide is full of diagrams and details about plumbing, electrical, and more.
PLAN 72-368
This plan can be customized
Tell us about your desired changes so we can prepare an estimate for the design service. Click the button to submit your request for pricing, or call 1-866-445-9085 for assistance.
Plan Description
Floor Plans
Full Specs & Features
Dimension
Depth : 53' 6"
Height : 29'
Width : 132'
Area
First Floor: 4104 sq/ft height 8'
Second Floor: 979 sq/ft
Ceiling
Main Ceiling : 8'
Roof
Primary Pitch : 6:12
Roof Framing : Conventional
Roof Type : Shingle
Exterior Wall Framing
Exterior Wall Finish : Brick
Framing : 2"x6"
Bedroom Features
Main Floor Master Bedroom
Walk In Closet
Kitchen Features
Eating Bar
Kitchen Island
Additional Room Features
Family Room Keeping Room
Loft
Garage Features
Side Entry Garage
Lot Characteristics
Suited For Corner Lot
Outdoor Spaces
Balcony
Covered Front Porch
Rooms
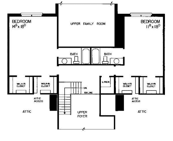
Bedroom 2:
261 sq/ft width 14' 6" x depth 18'
Bedroom 3:
210 sq/ft width 11' 8" x depth 18'
Bedroom 4:
243 sq/ft width 18' x depth 13' 6"
Den/Office or Bedroom 1:
240 sq/ft width 15' 8" x depth 15' 4"
Dining Room:
253 sq/ft width 15' 8" x depth 16' 2"
Garage:
447 sq/ft width 20' 4" x depth 22'
Gathering Room:
396 sq/ft width 17' x depth 23' 4"
Kitchen:
286 sq/ft width 18' 8" x depth 15' 4"
Living Room:
323 sq/ft width 15' 8" x depth 20' 8"
Master Bedroom:
325 sq/ft width 20' 4" x depth 16'
What's Included In This Plan Set
All plans are drawn at ¼” scale or larger and include :
- Foundation Plan: This page shows all necessary notations and dimensions including support columns, walls, and excavated/unexcavated areas.
- Exterior Elevations: Views of the home from all four sides showing exterior materials and measurements.
- Floor Plan(s): Detailed plans for each level showing room dimensions, wall partitions, windows and doors, etc.
- Cross Section: A slice of the home from roof to foundation, showing important details like stairs and wall construction.
- Overhead Roof Plan(s): A view of the home from above showing roof pitch, peaks, valleys, and other details.
- Construction Notes and Details: Shows the builder how things come together, like walls, the chimney, insulation, and more.
Plan Set
$1436.16
$1548.36
$1660.56
$1323.96
Foundation
$0.00
Additional Options
$165.75
$51.00
$420.75
$127.50
$420.75
$33.15
$127.50
$72.25
$0.00
$845.75
* Alternate Foundations may take time to prepare.
** Options with a fee may take time to prepare. Please call to confirm.
 
 
                 
                         
                         
                 
                 
                 
                 
                 
                 
                 
                 
                 
                