- Jump to:
- All (4)
- Floor plans (2)
Key Specs
2467
sq ft
3
Beds
2
Baths
1
Floors
2
Garages
Phone: 1-866-445-9085
See our Terms & Conditions and Privacy Policy.
Use Code CTBFALL
Residential Construction Guide
Learn Building Basics
This downloadable, 26-page guide is full of diagrams and details about plumbing, electrical, and more.
PLAN 18-138
This plan can be customized
Tell us about your desired changes so we can prepare an estimate for the design service. Click the button to submit your request for pricing, or call 1-866-445-9085 for assistance.
Plan Description
Floor Plans
Full Specs & Features
Dimension
Depth : 40'
Height : 24'
Width : 48'
Area
First Floor: 1389 sq/ft
Ceiling
Main Ceiling : 8'
Roof
Primary Pitch : 6:12
Roof Framing : Truss
Roof Type : Asphalt
Exterior Wall Framing
Framing : 2"x6"
Bedroom Features
Split Bedrooms
Kitchen Features
Kitchen Island
Additional Room Features
Den Office Study Computer
Family Room Keeping Room
Unfinished Future Space
Workshop
Lot Characteristics
Suited For Narrow Lot
Suited For Sloping Lot
Suited For View Lot
Outdoor Spaces
Covered Front Porch
What's Included In This Plan Set
- Foundation Plan: Drawn to 1/4" scale, this page shows all necessary notations and dimensions including support columns, walls and excavated and unexcavated areas.
- Exterior Elevations: A blueprint picture of all four sides showing exterior materials and measurements.
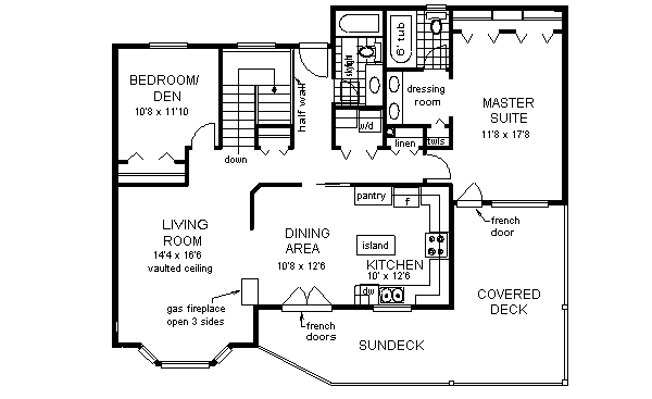
- Floor Plan(s): Detailed plans, drawn to 1/4" scale for each level showing room dimensions, wall partitions, windows, etc. as well as the location of electrical outlets and switches.
- Cross Section: A vertical cutaway view of the house from roof to foundation showing details of framing, construction, flooring and roofing.
Plan Set
$1013.17
$1130.98
$1248.79
$1248.79
$2026.33
$852.72
$895.36
Foundation
$0.00
$0.00
Framing
$0.00
Additional Options
$165.75
$51.00
$420.75
$127.50
$250.75
$33.15
$127.50
$72.25
$0.00
$845.75
* Alternate Foundations may take time to prepare.
** Options with a fee may take time to prepare. Please call to confirm.
 
 
                 
                         
                         
                 
                 
                 
                 
                 
                 
                 
                 
                 
                