- Jump to:
- All (3)
- Floor plans (2)
Key Specs
1282
sq ft
3
Beds
2
Baths
1
Floors
0
Garages
Phone: 1-866-445-9085
See our Terms & Conditions and Privacy Policy.
Use Code CTBFALL
Residential Construction Guide
Learn Building Basics
This downloadable, 26-page guide is full of diagrams and details about plumbing, electrical, and more.
PLAN 47-716
This plan can be customized
Tell us about your desired changes so we can prepare an estimate for the design service. Click the button to submit your request for pricing, or call 1-866-445-9085 for assistance.
Plan Description
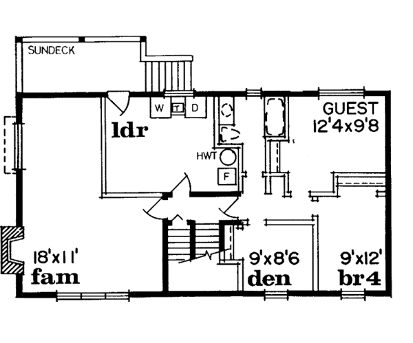
Floor Plans
Full Specs & Features
Dimension
Depth : 27'
Height : 20'
Width : 47'
Area
Basement Unfinished: 1199 sq/ft
First Floor: 1282 sq/ft height 8'
Roof
Primary Pitch : 5:12
Roof Framing : Truss
Exterior Wall Framing
Exterior Wall Finish : Siding
Framing : Wood - 2x6
Bedroom Features
Fireplace
Rooms
3rd BR Closet:
9 sq/ft width 4' 9" x depth 2'
Basement Foundation:
1198 sq/ft width 25' 6" x depth 47'
Bedroom 2:
101 sq/ft width 11' 3" x depth 9'
Bedroom 2 Closet:
11 sq/ft width 2' x depth 5' 10"
Bedroom 3:
89 sq/ft width 10' 1" x depth 8' 11"
Bedroom 3 Closet:
11 sq/ft width 2' x depth 5' 10"
Deck:
128 sq/ft width 8' x depth 16'
Dining Room:
123 sq/ft width 12' 4" x depth 10'
Foyer:
26 sq/ft width 4' x depth 6' 6"
Hall Bathroom:
51 sq/ft width 7' x depth 7' 4"
Kitchen:
165 sq/ft width 12' x depth 13' 10"
Living Room:
244 sq/ft width 13' 7" x depth 18'
Master Bathroom:
35 sq/ft width 4' 9" x depth 7' 6"
Master Bedroom:
147 sq/ft width 13' 5" x depth 11'
Master Closet:
17 sq/ft width 8' 8" x depth 2'
What's Included In This Plan Set
- Foundation Plan(s): This page shows all necessary notations and dimensions including footings, support columns, walls, and excavated/unexcavated areas.
- Floor Plan(s): Detailed plans for each level showing room dimensions, wall partitions, windows and doors, fixture locations, and ceiling treatments.
- Exterior Elevations: Views of the home from all four sides showing exterior materials, roof slope, ridge heights, siding and trim notes.
- Overhead Roof Plan(s): A view of the home from above showing roof pitch, peaks, valleys, and other details.
- Cross Section(s): A slice of the home from roof to foundation, showing relationships between floors, roof, and foundation.
- Construction Notes and Detail(s): Shows basic parts and assemblies recommended for the home so the builder can see how things come together.
Plan Set
$785.40
$897.60
$1009.80
$1009.80
$1570.80
Foundation
$0.00
$233.75
$233.75
$233.75
Framing
$0.00
Additional Options
$165.75
$51.00
$420.75
$127.50
$250.75
$33.15
$127.50
$72.25
$0.00
$845.75
* Alternate Foundations may take time to prepare.
** Options with a fee may take time to prepare. Please call to confirm.
 
 
                 
                         
                         
                 
                 
                 
                 
                 
                 
                 
                