Don't lose your saved plans!  Create an account to access your saves whenever you want. See our Terms & Conditions and Privacy Policy.

PLAN 1060-483

Photographs may show modified designs.

Save
  • Jump to:
  • All (16)
  • Floor plans (2)
Questions? Get Personalized Help

Key Specs


Plan Sq Ft

1184
sq ft

Plan Bedrooms

1
Beds

Plan Bathrooms

2
Baths

Plan Floors

2
Floors

Plan Garages

3
Garages

Select Plan Set Options

What's included?
$195.00
$165.00
$295.00
$39.00
$165.00
Subtotal
$700.00
Best Price Guaranteed*
Also order by phone: 1-866-445-9085
 
Questions about building your home?
Get Personalized Help
We do our best to get back to you within 24 - 48 business hours.
Need an answer faster? Call now...
Phone: 1-866-445-9085
Hours:
Ready for Your Call 7 Days a Week
Every Day 7 am - 8:30 pm Eastern

See our Terms & Conditions and Privacy Policy.

 
Wow!
Cost to Build Reports
Only $1.99 Right Now
Use Code CTB2026
Our Cost to Build Report gives you a personalized estimate for building your home, based on your location, plan, and materials.
Get Cost To Build Report
Limit one per order.

Residential Construction Guide

Learn Building Basics

This downloadable, 26-page guide is full of diagrams and details about plumbing, electrical, and more.

PLAN 1060-483

This plan can be customized

Tell us about your desired changes so we can prepare an estimate for the design service. Click the button to submit your request for pricing, or call 1-866-445-9085 for assistance.

Modify This Plan

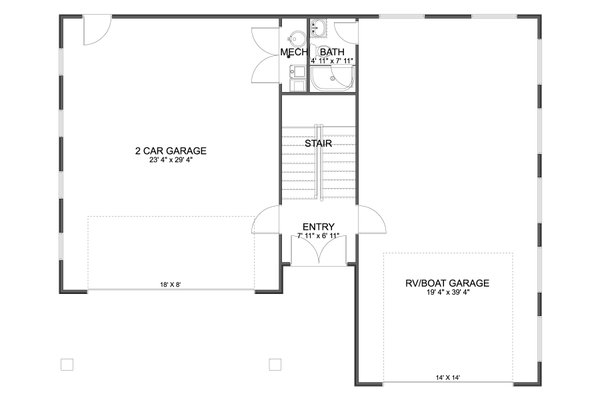
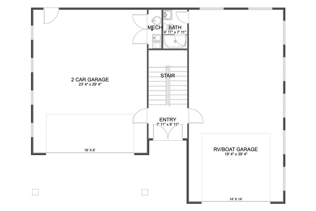
Plan Description


This barndominium design floor plan is 1184 sq ft and has 1 bedrooms and 2 bathrooms.

Full Specs & Features


Dimension

Depth: 40'

Height: 27' 5"

Width: 52'

Area

Decks: 325 sq/ft

Garage: 1520 sq/ft

Main Floor: 215 sq/ft

Upper Floor: 969 sq/ft

* Total Square Footage typically only includes conditioned space and does not include garages, porches, bonus rooms, or decks.

Ceiling

Ceiling Details: 10' ceilings in main level and 2 car garage. vaulted ceilings upstairs

Garage Ceiling: 19' 7"

Main Ceiling: 10'

Upper Ceiling Ft: 8'

Roof

Primary Pitch: 6/12

Roof Framing: Truss

Exterior Wall Framing

Exterior Wall Finish: siding

Framing: 2 x 4

Bedroom Features

Upstairs Bedrooms

Additional Room Features

Family Room Keeping Room

Mud Room

Storage Area

Workshop

Garage Features

Front Entry Garage

Garage Under

Oversized Garage

RV Garage

Outdoor Spaces

Covered Front Porch

Grill Deck Sundeck

More

Economical To Build

Suited For Vacation Home

What's Included In This Plan Set


All plans are drawn at ¼” scale or larger and include :

  • Foundation Plan: This page shows all necessary notations and dimensions including support columns, walls, and excavated/unexcavated areas.
  • Exterior Elevations: Views of the home from all four sides showing exterior materials and measurements.
  • Floor Plan(s): Detailed plans for each level showing room dimensions, wall partitions, windows and doors, etc.
  • Cross Section: A slice of the home from roof to foundation, showing important details like stairs and wall construction.
  • Overhead Roof Plan(s): A view of the home from above showing roof pitch, peaks, valleys, and other details.
  • Construction Notes and Details: Shows the builder how things come together, like walls, the chimney, insulation, and more.
» See important information before purchasing.
Questions? Call 1-866-445-9085

Plan Set

PDF Set:
$700.00
PDF plan sets are best for fast electronic delivery and inexpensive local printing.
PDF Unlimited Build:
$825.00
PDF plan sets are best for fast electronic delivery and inexpensive local printing.
5 Copy and PDF Set:
$1125.00
5 printed plan sets mailed to you plus PDF plan sets are best for fast electronic delivery and inexpensive local printing.
CAD Single Build:
$1150.00
For use by design professionals to make substantial changes to your house plan and inexpensive local printing.
CAD Unlimited Build:
$1275.00
For use by design professionals to make substantial changes to your house plan and inexpensive local printing.

Foundation

Floating Slab:
$0.00
A concrete slab that covers the ground with no anchoring, it simply floats. Typical for garages and workshop plans.
Monolithic Slab:
$250.00
A single concrete pour with thicker portions that replace footers under load bearing walls and all perimeter edges.

Framing

Wood 2x4:
$0.00
Wood 2x4 Exterior Walls
Wood 2x6:
$250.00
Wood 2x6 Exterior Walls

Additional Options

Right-Reading Reverse:
$195.00
Choose this option to reverse your plans and to have the text and dimensions readable.
Audio Video Design:
$165.00
Receive an overlay sheet with suggested placement of audio and video components.
Comprehensive Material List:
$295.00
A complete list of building supplies needed to construct the infrastructure of your new house, plus an overlay of materials shown directly on your PDF (foundation to rooftop with interior and exterior materials), and a detailed, itemized door and window schedule showing all sizes and types. Please allow 5-7 Business Days for completion. Note, the Comprehensive list is only available with a PDF purchase. The Comprehensive list can be ordered no matter what additional plan options you have selected.
Construction Guide:
$39.00
Educate yourself about basic building ideas with these four detailed diagrams that discuss electrical, plumbing, mechanical, and structural topics.
Lighting Design:
$165.00
Receive an overlay sheet with suggested placement of lighting fixtures.

* Alternate Foundations may take time to prepare.

** Options with a fee may take time to prepare. Please call to confirm.

Unless you buy an “unlimited” plan set or a multi-use license you may only build one home from a set of plans. Please call to verify if you intend to build more than once. Plan licenses are non-transferable and cannot be resold.

Browse Similar Plans