- Jump to:
- All (4)
- Floor plans (3)
Key Specs
6271
sq ft
8
Beds
6
Baths
2
Floors
3
Garages
Phone: 1-866-445-9085
See our Terms & Conditions and Privacy Policy.
Use Code CTBFALL
Residential Construction Guide
Learn Building Basics
This downloadable, 26-page guide is full of diagrams and details about plumbing, electrical, and more.
PLAN 117-219
This plan can be customized
Tell us about your desired changes so we can prepare an estimate for the design service. Click the button to submit your request for pricing, or call 1-866-445-9085 for assistance.
Plan Description
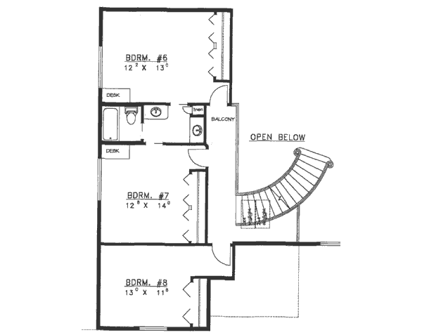
Floor Plans
Full Specs & Features
Dimension
Depth : 71' 2"
Height : 29' 10"
Width : 68' 7"
Area
Basement Living: 2671 sq/ft
First Floor: 2670 sq/ft
Second Floor: 931 sq/ft
Roof
Primary Pitch : 8:12
Roof Framing : Truss
Exterior Wall Framing
Exterior Wall Finish : Stucco
Framing : 2"x6"
Bedroom Features
Walk In Closet
Kitchen Features
Eating Bar
Kitchen Island
Walk In Pantry Cabinet Pantry
Additional Room Features
Great Room Living Room
Hobby Rec Room Game Room
Loft
Media Room
Storage Area
Workshop
Garage Features
Oversized Garage
Tandem Garage
Outdoor Spaces
Balcony
Covered Front Porch
Covered Rear Porch
More
Jack & Jill Bath
What's Included In This Plan Set
- Foundation Plan(s): Footing locations, foundation details, etc.
- Floor Plan(s): Layout of floor plan, window/door schedule, interior and exterior dimensions
- Exterior Elevations: Exterior on all four sides, siding notes, roof pitches, garage door heights, etc.
- Overhead Roof Plan(s): A view of the home from above showing roof pitch, peaks, valleys, and other details.
- Cross Section(s): Cut-through view of home. Shows foundation, insulation, wall construction, ceiling heights, etc.
- Electrical Plan(s): Lighting, switches, electrical outlet placement throughout home.
- Detail Sheet(s): Additional structural details included in most log and ICF plans. Important: design loads and weather conditions vary by region. As a result the size, spacing, and layout of all structural elements in this home design may need approval by a structural engineer or code official based on your specific site location.
- Construction Notes / Detail(s): Referencing the entirety of the project.
- Framing Detail(s): Location of supporting walls and beams. Location/spacing of floor joists, floor framing details. Layout of roof, roof framing details, truss/rafter locations, connection details etc. If included, the framing layout is intended to be a suggested layout only. Design loads and weather conditions vary by region. As a result the size, spacing, and layout of all structural elements in this home design may need approval by a structural engineer or code official based on your specific site location.
Plan Set
$2120.75
$2120.75
$2715.75
Foundation
$0.00
Additional Options
$165.75
$140.25
$420.75
$33.15
$140.25
* Alternate Foundations may take time to prepare.
** Options with a fee may take time to prepare. Please call to confirm.
 
 
                 
                         
                         
                         
                 
                 
                 
                 
                 
                 
                 
                 
                