- Jump to:
- All (3)
- Floor plans (2)
Key Specs
4747
sq ft
3
Beds
4.5
Baths
2
Floors
3
Garages
Phone: 1-866-445-9085
See our Terms & Conditions and Privacy Policy.
Use Code CTBFALL
Residential Construction Guide
Learn Building Basics
This downloadable, 26-page guide is full of diagrams and details about plumbing, electrical, and more.
PLAN 999-133
This plan can be customized
Tell us about your desired changes so we can prepare an estimate for the design service. Click the button to submit your request for pricing, or call 1-866-445-9085 for assistance.
Plan Description
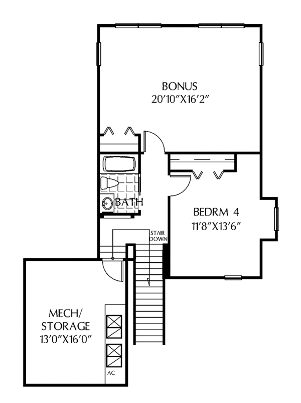
Floor Plans
Full Specs & Features
Dimension
Depth : 101' 4"
Height : 27' 2"
Width : 96' 2"
Area
First Floor: 4053 sq/ft
Second Floor: 694 sq/ft
Roof
Primary Pitch : 7:12
Roof Framing : Truss
Roof Type : Shingle
Exterior Wall Framing
Exterior Wall Finish : Stucco
Framing : Block
Bedroom Features
Fireplace
Walk In Closet
Additional Room Features
Den Office Study Computer
Storage Area
Unfinished Future Space
Vaulted / Cathedral Ceilings
Outdoor Spaces
Covered Front Porch
What's Included In This Plan Set
All plans are drawn at ¼” scale or larger and include :
- Foundation Plan: This page shows all necessary notations and dimensions including support columns, walls, and excavated/unexcavated areas.
- Exterior Elevations: Views of the home from all four sides showing exterior materials and measurements.
- Floor Plan(s): Detailed plans for each level showing room dimensions, wall partitions, windows and doors, etc.
- Cross Section: A slice of the home from roof to foundation, showing important details like stairs and wall construction.
- Overhead Roof Plan(s): A view of the home from above showing roof pitch, peaks, valleys, and other details.
- Construction Notes and Details: Shows the builder how things come together, like walls, the chimney, insulation, and more.
Plan Set
$937.55
$1003.85
$1294.55
$1294.55
$2342.60
$892.50
Foundation
$0.00
Framing
$0.00
Additional Options
$233.75
$55.25
$85.00
$33.15
$170.00
$106.25
* Alternate Foundations may take time to prepare.
** Options with a fee may take time to prepare. Please call to confirm.
 
 
                 
                         
                         
                 
                 
                 
                 
                 
                 
                 
                 
                