Don't lose your saved plans!  Create an account to access your saves whenever you want. See our Terms & Conditions and Privacy Policy.
ON SALE!

PLAN 437-105

Photographs may show modified designs.

Save
  • Jump to:
  • All (27)
  • Floor plans (1)
Questions? Get Personalized Help

Key Specs


Plan Sq Ft

3644
sq ft

Plan Bedrooms

5
Beds

Plan Bathrooms

5
Baths

Plan Floors

1
Floors

Plan Garages

3
Garages

Select Plan Set Options

What's included?
$170.00
$140.25
$335.75
$33.15
$140.25
Subtotal
NOW $1415.25
You save $249.75 (15% savings)
Sale ends soon!
Best Price Guaranteed*
Also order by phone: 1-866-445-9085
 
Questions about building your home?
Get Personalized Help
We do our best to get back to you within 24 - 48 business hours.
Need an answer faster? Call now...
Phone: 1-866-445-9085
Hours:
Ready for Your Call 7 Days a Week
Every Day 7 am - 8:30 pm Eastern

See our Terms & Conditions and Privacy Policy.

 
Wow!
Cost to Build Reports
Only $1.99 Right Now
Use Code CTBFALL
Our Cost to Build Report gives you a personalized estimate for building your home, based on your location, plan, and materials.
Get Cost To Build Report
Limit one per order.

Residential Construction Guide

Learn Building Basics

This downloadable, 26-page guide is full of diagrams and details about plumbing, electrical, and more.

PLAN 437-105

This plan can be customized

Tell us about your desired changes so we can prepare an estimate for the design service. Click the button to submit your request for pricing, or call 1-866-445-9085 for assistance.

Modify This Plan

Plan Description


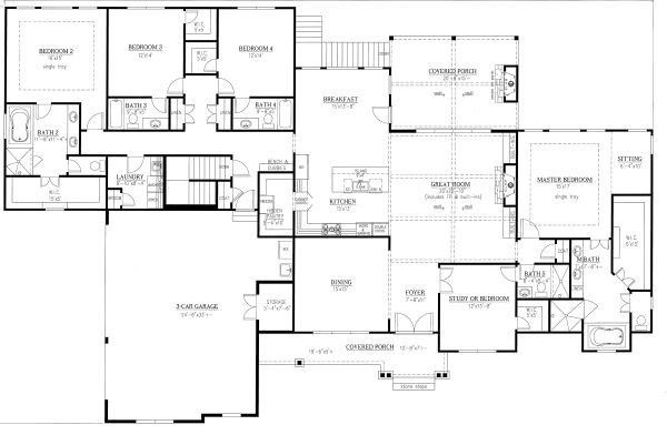
This craftsman design floor plan is 3644 sq ft and has 5 bedrooms and 5 bathrooms.

Full Specs & Features


Dimension

Depth : 66' 8"

Height : 29' 6"

Width : 104'

Area

Basement : 3644 sq/ft

Garage : 910 sq/ft

Main Floor : 3644 sq/ft

Porch : 475 sq/ft

* Total Square Footage typically only includes conditioned space and does not include garages, porches, bonus rooms, or decks.

Ceiling

Garage Ceiling : 10'

Lower Ceiling : 11'

Main Ceiling : 10'

Roof

Primary Pitch : 12/12

Roof Framing : Truss/Stick

Roof Type : Asphalt

Exterior Wall Framing

Exterior Wall Finish : Brick/Stone/Shingle

Framing : 2x4

Bedroom Features

Main Floor Master Bedroom

Split Bedrooms

Walk In Closet

Kitchen Features

Kitchen Island

Walk In Pantry Cabinet Pantry

Additional Room Features

Den Office Study Computer

Great Room Living Room

Main Floor Laundry

Master Sitting Area

Storage Area

Garage Features

Oversized Garage

Side Entry Garage

Outdoor Spaces

Covered Front Porch

Covered Rear Porch

Rooms

Bathroom 2:

width 11' 8" x depth 11' 4"

Bathroom 3:

width 9' x depth 8' 5"

Bathroom 4:

width 9' x depth 8' 5"

Bathroom 5:

width 8' 4" x depth 5' 4"

Bedroom 2:

width 16' x depth 15'

Bedroom 3:

width 12' x depth 14'

Bedroom 4:

width 12' x depth 14'

Breakfast:

width 15' x depth 13' 8"

Covered Porch:

width 20' x depth 9' 3"

Dining:

width 15' x depth 15'

Foyer:

width 7' x depth 8' 11"

Garage:

width 24' 8" x depth 33'

Great Room:

width 20' x depth 20' 10"

Kitchen:

width 15' x depth 13'

Laundry:

width 8' 10" x depth 8' 4"

Master Bath:

width 8' 5" x depth 8'

Master Bedroom:

width 15' x depth 17'

Master Closet:

width 6' x depth 15'

Sitting Area:

width 6' x depth 4' 10"

Storage:

width 5' 4" x depth 7' 6"

Study/Bedroom:

width 12' x depth 13' 8"

What's Included In This Plan Set


Please note: This designer has the following the zip code restrictions: 30041, 30501, 30504, 30506, 30542, and 30566.

Plans are typically drawn to ¼” scale and include:

  • Foundation Plan(s): The foundation page shows concrete walls, footings, pads, posts, beams, bearing walls, and any retaining wall info (schematic only). Typical wall section details are shown for various footings. On plans drawn as walk out basements, if you choose the optional slab foundation, the slab foundation will not be reflected in the exterior elevations.
  • Floor Plan(s): Dimensioned exterior and interior wall framing along with labeled windows/doors sizes in each room of home. Wall heights are indicated for each level. Room sizes are indicated and any beams, posts and structural bearing points are called out.
  • Exterior Elevations: Plans include detailed front, sides, and rear exterior drawings. These drawings give notes on all exterior materials and finishes (siding, brick, stone, etc).
  • Overhead Roof Plan(s): Roof plan showing all hips, ridges, and valleys along with slope directions are indicated. Structural members are sized and called out if applicable.
  • Cross Section(s): A slice of the home from roof to foundation, showing relationships between floors, roof, and foundation.
  • Building Section(s): Building sections show changes in floor, ceiling, or roof height, and the relationship of one level to another. Some plans will have additional cross-sections and details as needed for displaying any special framing details applicable to the design.
  • Electrical Plan(s): The floorplans include an electrical legend, electrical fittings, lights, and outlets are shown.
  • Construction Notes / Detail(s): Shows basic parts and assemblies recommended for the home so the builder can see how things come together.
  • Code Drawn To: Plans meet the requirements of the ‘International Residential Code’ (year may vary). Compliance with further standards may need to be incorporated into your plan set, depending the requirements of your local/state building department — these typically are done locally.
» See important information before purchasing.
Questions? Call 1-866-445-9085

Plan Set

PDF Set:
$1415.25
PDF plan sets are best for fast electronic delivery and inexpensive local printing.
CAD Set:
$1585.25
For use by design professionals to make substantial changes to your house plan and inexpensive local printing.

Foundation

Walk Out Basement:
$0.00
Ideal for a sloping lot, lower level with outdoor access.

Framing

Wood 2x4:
$0.00
Wood 2x4 Exterior Walls

Additional Options

Right-Reading Reverse:
$170.00
Choose this option to reverse your plans and to have the text and dimensions readable.
Audio Video Design:
$140.25
Receive an overlay sheet with suggested placement of audio and video components.
Comprehensive Material List:
$335.75
A complete list of building supplies needed to construct the infrastructure of your new house, plus an overlay of materials shown directly on your PDF (foundation to rooftop with interior and exterior materials), and a detailed, itemized door and window schedule showing all sizes and types. Please allow 5-7 Business Days for completion. Note, the Comprehensive list is only available with a PDF purchase. The Comprehensive list can be ordered no matter what additional plan options you have selected.
Construction Guide:
$33.15
Educate yourself about basic building ideas with these four detailed diagrams that discuss electrical, plumbing, mechanical, and structural topics.
Lighting Design:
$140.25
Receive an overlay sheet with suggested placement of lighting fixtures.

* Alternate Foundations may take time to prepare.

** Options with a fee may take time to prepare. Please call to confirm.

Unless you buy an “unlimited” plan set or a multi-use license you may only build one home from a set of plans. Please call to verify if you intend to build more than once. Plan licenses are non-transferable and cannot be resold.

Browse Similar Plans