Don't lose your saved plans!  Create an account to access your saves whenever you want. See our Terms & Conditions and Privacy Policy.
ON SALE!
  • Jump to:
  • All (35)
  • Floor plans (3)
Questions? Get Personalized Help
Home  >  Style  >  Beach

Key Specs


Plan Sq Ft

3498
sq ft

Plan Bedrooms

3
Beds

Plan Bathrooms

3.5
Baths

Plan Floors

2
Floors

Plan Garages

2
Garages

Select Plan Set Options

What's included?
$239.20
Additional Construction Sets$47.20/each

Additional hard copies of the plan (can be ordered at the time of purchase and within 90 days of the purchase date).

$132.00
$31.20
$132.00
$239.20
Subtotal
NOW $1519.20
You save $379.80 (20% savings)
Sale ends soon!
Best Price Guaranteed*
Also order by phone: 1-866-445-9085
 
Questions about building your home?
Get Personalized Help
We do our best to get back to you within 24 - 48 business hours.
Need an answer faster? Call now...
Phone: 1-866-445-9085
Hours:
Ready for Your Call 7 Days a Week
Every Day 7 am - 8:30 pm Eastern

See our Terms & Conditions and Privacy Policy.

 
Wow!
Cost to Build Reports
Only $1.99 Right Now
Use Code CTBFALL
Our Cost to Build Report gives you a personalized estimate for building your home, based on your location, plan, and materials.
Get Cost To Build Report
Limit one per order.

Residential Construction Guide

Learn Building Basics

This downloadable, 26-page guide is full of diagrams and details about plumbing, electrical, and more.

PLAN 455-699

This plan can be customized

Tell us about your desired changes so we can prepare an estimate for the design service. Click the button to submit your request for pricing, or call 1-866-445-9085 for assistance.

Modify This Plan

Plan Description


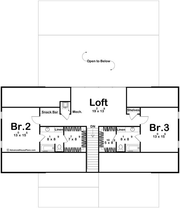
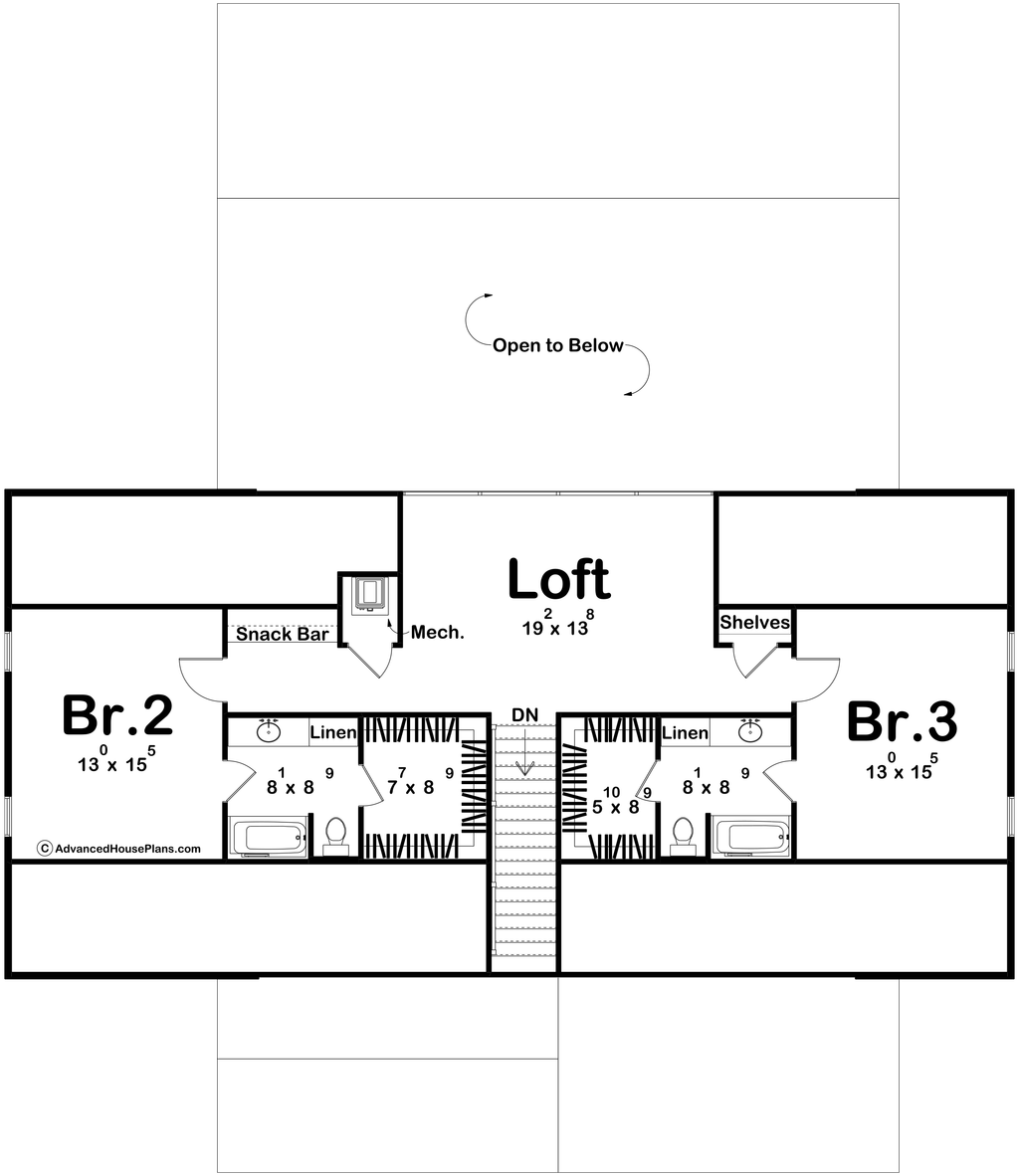
Step into this 1½-story modern Scandinavian lake home and feel an immediate sense of calm and clarity. A formal entry opens to clean lines, warm natural textures, and soaring ceilings that invite you further inside. Sunlight floods the open-concept main level through expansive windows, blurring the boundary between indoors and the stunning lakefront beyond. Every detail is thoughtfully designed to embody Scandinavian simplicity—functional, beautiful, and effortlessly welcoming. The heart of the home is its luminous main living area, where the kitchen, dining room, and great room flow together for easy everyday living and unforgettable gatherings. Three bedrooms and four bathrooms ensure comfort and privacy for family and guests, while the second-level loft provides a striking vantage point that overlooks the main floor. Whether used as a cozy lounge, creative workspace, or quiet reading nook, the loft adds architectural drama and versatile functionality. Step outside and the serenity continues. Multiple outdoor living spaces—perfect for morning coffee, sunset dinners, or relaxing by the water—extend your living area into nature itself. This home is designed not just for living, but for experiencing: light, space, and the timeless beauty of lakeside Scandinavian design. It’s a retreat that feels both modern and timeless, simple yet luxurious, and always connected to the world outside your door.

Full Specs & Features


Dimension

Depth : 72'

Height : 31'

Width : 62'

Area

Basement : 1709 sq/ft

Decks : 664 sq/ft

Garage : 564 sq/ft

Main Floor : 2409 sq/ft

Porch : 131 sq/ft

Upper Floor : 1089 sq/ft

* Total Square Footage typically only includes conditioned space and does not include garages, porches, bonus rooms, or decks.

Ceiling

Ceiling Details : The entry has a tall, sloped ceiling. The master bedroom has a tray ceiling. The great room, dining room, and rear deck have cathedral ceilings.

Garage Ceiling : 10'

Lower Ceiling : 9'

Main Ceiling : 10'

Upper Ceiling Ft : 8'

Roof

Primary Pitch : 12/12

Roof Framing : Truss

Secondary Pitch : Flat

Exterior Wall Framing

Framing : 2x4

Bedroom Features

Main Floor Master Bedroom

Split Bedrooms

Upstairs Bedrooms

Walk In Closet

Kitchen Features

Butler's Pantry

Kitchen Island

Additional Room Features

Great Room Living Room

Loft

Main Floor Laundry

Mud Room

Garage Features

Front Entry Garage

Lot Characteristics

Suited For Narrow Lot

Suited For View Lot

Outdoor Spaces

Covered Front Porch

Covered Rear Porch

Grill Deck Sundeck

Outdoor Kitchen Grill

More

Additional Half Bath

Suited For Vacation Home

What's Included In This Plan Set


All plans are drawn at ¼” scale or larger and include :

  • Foundation Plan: This page shows all necessary notations and dimensions including support columns, walls, and excavated/unexcavated areas.
  • Exterior Elevations: Views of the home from all four sides showing exterior materials and measurements.
  • Floor Plan(s): Detailed plans for each level showing room dimensions, wall partitions, windows and doors, etc.
  • Cross Section: A slice of the home from roof to foundation, showing important details like stairs and wall construction.
  • Overhead Roof Plan(s): A view of the home from above showing roof pitch, peaks, valleys, and other details.
  • Construction Notes and Details: Shows the builder how things come together, like walls, the chimney, insulation, and more.
» See important information before purchasing.
Questions? Call 1-866-445-9085

Plan Set

PDF Set:
$1519.20
PDF plan sets are best for fast electronic delivery and inexpensive local printing.
5 Copy and PDF Set:
$1755.20
5 printed plan sets mailed to you plus PDF plan sets are best for fast electronic delivery and inexpensive local printing.
CAD and PDF Set:
$1998.40
For use by design professionals to make substantial changes to your house plan and inexpensive local printing plus PDF plan sets are best for fast electronic delivery and inexpensive local printing.
CAD and PDF Set Unlimited Build:
$2318.40
For use by design professionals to make substantial changes to your house plan and inexpensive local printing plus PDF plan sets are best for fast electronic delivery and inexpensive local printing.

Foundation

Walk Out Basement:
$0.00
Ideal for a sloping lot, lower level with outdoor access.
Basement:
$239.20
Ideal for level lot, lower level of home partially or fully underground.
Crawlspace:
$239.20
Ideal for semi-sloped or level lot, home can be built off of grade, typically 18” - 48”.
Slab:
$239.20
Ideal for level lot, single layer concrete poured directly on grade.

Framing

Wood 2x4:
$0.00
Wood 2x4 Exterior Walls
Wood 2x6:
$239.20
Wood 2x6 Exterior Walls

Additional Options

Right-Reading Reverse:
$239.20
Choose this option to reverse your plans and to have the text and dimensions readable.
Additional Construction Sets:
$47.20
Additional hard copies of the plan (can be ordered at the time of purchase and within 90 days of the purchase date).
Audio Video Design:
$132.00
Receive an overlay sheet with suggested placement of audio and video components.
Construction Guide:
$31.20
Educate yourself about basic building ideas with these four detailed diagrams that discuss electrical, plumbing, mechanical, and structural topics.
Lighting Design:
$132.00
Receive an overlay sheet with suggested placement of lighting fixtures.
Material List:
$239.20
A spreadsheet of building supplies needed to construct the infrastructure of your new house. Please note materials lists will not reflect add-ons such as alternate foundation and framing options.

* Alternate Foundations may take time to prepare.

** Options with a fee may take time to prepare. Please call to confirm.

Unless you buy an “unlimited” plan set or a multi-use license you may only build one home from a set of plans. Please call to verify if you intend to build more than once. Plan licenses are non-transferable and cannot be resold.