- Jump to:
- All (5)
- Floor plans (2)
Key Specs
3091
sq ft
4
Beds
3
Baths
2
Floors
3
Garages
Phone: 1-866-445-9085
See our Terms & Conditions and Privacy Policy.
Use Code CTBFALL
Residential Construction Guide
Learn Building Basics
This downloadable, 26-page guide is full of diagrams and details about plumbing, electrical, and more.
PLAN 413-100
This plan can be customized
Tell us about your desired changes so we can prepare an estimate for the design service. Click the button to submit your request for pricing, or call 1-866-445-9085 for assistance.
Plan Description
Floor Plans
Full Specs & Features
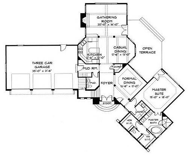
Dimension
Depth : 73' 2"
Height : 36'
Width : 87' 9"
Area
First Floor: 1833 sq/ft
Second Floor: 1258 sq/ft
Ceiling
Main Ceiling : 10'
Upper Ceiling Ft : 9'
Roof
Primary Pitch : 14:12
Exterior Wall Framing
Framing : 2"x4"
Bedroom Features
Main Floor Master Bedroom
Split Bedrooms
Walk In Closet
Kitchen Features
Breakfast Nook
Kitchen Island
Walk In Pantry Cabinet Pantry
Additional Room Features
Den Office Study Computer
Great Room Living Room
Hobby Rec Room Game Room
Loft
Garage Features
Oversized Garage
Lot Characteristics
Suited For View Lot
Outdoor Spaces
Balcony
Rooms
Bedroom 3:
145 sq/ft width 11' 2" x depth 13'
Bedroom 4:
145 sq/ft width 11' 2" x depth 13'
Computer room:
width 6' 2" x depth 8'
Dining Room:
164 sq/ft width 13' 8" x depth 12'
Garage:
758 sq/ft width 35' x depth 21' 8"
Gathering Room:
320 sq/ft width 20' x depth 16'
Guest Suite:
144 sq/ft width 12' x depth 12'
Kitchen:
162 sq/ft width 12' 6" x depth 13'
Laundry:
width 6' x depth 8'
Master bath:
width 12' x depth 11'
Master Closet #1:
width 6' 2" x depth 7'
Master Closet #2:
width 6' 2" x depth 7'
Master Suite:
270 sq/ft width 15' x depth 18'
What's Included In This Plan Set
All plans are drawn at ¼” scale or larger and include :
- Foundation Plan: This page shows all necessary notations and dimensions including support columns, walls, and excavated/unexcavated areas.
- Exterior Elevations: Views of the home from all four sides showing exterior materials and measurements.
- Floor Plan(s): Detailed plans for each level showing room dimensions, wall partitions, windows and doors, etc.
- Cross Section: A slice of the home from roof to foundation, showing important details like stairs and wall construction.
- Overhead Roof Plan(s): A view of the home from above showing roof pitch, peaks, valleys, and other details.
- Construction Notes and Details: Shows the builder how things come together, like walls, the chimney, insulation, and more.
Plan Set
$1530.00
$2210.00
$2210.00
Foundation
$0.00
$170.00
$340.00
$510.00
Additional Options
$85.00
$85.00
$33.15
$170.00
* Alternate Foundations may take time to prepare.
** Options with a fee may take time to prepare. Please call to confirm.
 
 
                 
                         
                         
                 
                 
                 
                 
                 
                 
                 
                 
                