- Jump to:
- All (28)
- Floor plans (1)
Phone: 1-866-445-9085
See our Terms & Conditions and Privacy Policy.
Use Code CTBFALL
Residential Construction Guide
Learn Building Basics
This downloadable, 26-page guide is full of diagrams and details about plumbing, electrical, and more.
PLAN 892-37
This plan can be customized
Tell us about your desired changes so we can prepare an estimate for the design service. Click the button to submit your request for pricing, or call 1-866-445-9085 for assistance.
Plan Description
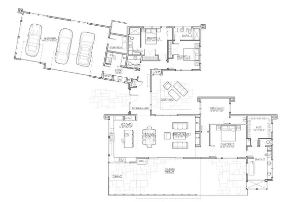
Floor Plans
Full Specs & Features
Dimension
Depth : 119' 6"
Height : 17' 4"
Width : 82' 4"
Area
Garage : 1018 sq/ft
Main Floor : 2818 sq/ft
Ceiling
Ceiling Details : 9' and 10' flat ceilings with 15'3" flat ceiling vault in great room
Main Ceiling : 9' 1"
Roof
Primary Pitch : flat
Roof Framing : truss/stick
Roof Load : 25 psf snow
Exterior Wall Framing
Framing : 2x6
Bedroom Features
2 Master Suites
Guest Suite
Main Floor Bedrooms
Main Floor Master Bedroom
Split Bedrooms
Walk In Closet
Kitchen Features
Kitchen Island
Additional Room Features
Den Office Study Computer
Exercise Room
Great Room Living Room
Main Floor Laundry
Media Room
Mud Room
Garage Features
Oversized Garage
Side Entry Garage
Lot Characteristics
Suited For Corner Lot
Suited For View Lot
Outdoor Spaces
Courtyard
Covered Rear Porch
More
Additional Half Bath
Suited For Vacation Home
Unusual Shape
What's Included In This Plan Set
- Floor Plans: Detailed floor plans for both the main level and upper level (if applicable), include pertinent dimensions for: walls, windows, rooms and door openings. You'll also find the location of all appliances on these plans as well.
- Exterior Elevations: These plans include 4 elevation drawings showing the front, back and both sides. Exterior materials are called out.
- Building Sections: Perhaps one of the most important pages on any set of plans, the section cuts the house in half and shows details such as wall thickness, roof construction, foundation details, roof pitch, ceiling heights, and insulation.
- Foundation and Main Level Framing: Detailed drawings Including floor framing, location and direction of floor joists, locations of footings, notes related to the foundation and framing.
- Lower Roof and Upper Floor Framing: Detailed drawings Including floor and roof framing and notes related to the upper level and roof construction.
- Detail sheets: Detailed drawings and notes showing typical and specific foundation, wall, roof, and chimney construction.
Plan Set
$1525.75
$2205.75
$2205.75
$2205.75
$845.75
Foundation
$0.00
Framing
$0.00
Additional Options
$127.50
$675.75
* Alternate Foundations may take time to prepare.
** Options with a fee may take time to prepare. Please call to confirm.
 
 
                 
                         
                 
                 
                 
                 
                 
                 
                 
                 
                 
                