Don't lose your saved plans!  Create an account to access your saves whenever you want. See our Terms & Conditions and Privacy Policy.
ON SALE!

PLAN 44-241

Photographs may show modified designs.

Save
  • Jump to:
  • All (5)
  • Floor plans (1)
Questions? Get Personalized Help

Key Specs


Plan Sq Ft

2525
sq ft

Plan Bedrooms

4
Beds

Plan Bathrooms

2.5
Baths

Plan Floors

1
Floors

Plan Garages

2
Garages

Select Plan Set Options

What's included?
$127.50
Additional Construction Sets$38.25/each

Additional hard copies of the plan (can be ordered at the time of purchase and within 90 days of the purchase date).

$140.25
$250.75
$33.15
$140.25
Mirror Reversed Sets$63.75

Printed sets showing plan in reverse, text and dimensions will be backwards.

Subtotal
NOW $1011.50
You save $178.50 (15% savings)
Sale ends soon!
Best Price Guaranteed*
Also order by phone: 1-866-445-9085
 
Questions about building your home?
Get Personalized Help
We do our best to get back to you within 24 - 48 business hours.
Need an answer faster? Call now...
Phone: 1-866-445-9085
Hours:
Ready for Your Call 7 Days a Week
Every Day 7 am - 8:30 pm Eastern

See our Terms & Conditions and Privacy Policy.

 
Wow!
Cost to Build Reports
Only $1.99 Right Now
Use Code CTBFALL
Our Cost to Build Report gives you a personalized estimate for building your home, based on your location, plan, and materials.
Get Cost To Build Report
Limit one per order.

Residential Construction Guide

Learn Building Basics

This downloadable, 26-page guide is full of diagrams and details about plumbing, electrical, and more.

PLAN 44-241

This plan can be customized

Tell us about your desired changes so we can prepare an estimate for the design service. Click the button to submit your request for pricing, or call 1-866-445-9085 for assistance.

Modify This Plan

Plan Description


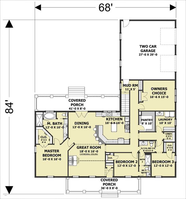
• Split bedroom layout for privacy. • Open kitchen/dining - perfect for entertaining. • Kitchen as an island, optional pot rack, lots of storage, lots of windows for light and a raised snack bar. • Close to the kitchen is a huge walk-in pantry with storage galore. • Great room has a ventless gas fireplace, a cathedral ceiling and is open to the dining area for entertaining. • The unique master suite has a dining area access for privacy, walk-in closet and a spa spa-style master bath. • The master bath has dual sinks, jetted tub, custom shower and toilet closet for privacy. • Bedrooms 2 and 3 are located for privacy with a Jack and Jill bathroom layout; this area was designed as a ½ bath for guests as well! • The large laundry room has lots of storage with cabinets, a laundry sink, and folding cabinet area. • A huge linen closet can be found in this area of the house. • An optional 4th bedroom, office or owner's choice can be found close to the rear foyer – the side door is perfect for meeting clients or removed for a more private space.

Full Specs & Features


Dimension

Depth : 84'

Height : 25'

Width : 68'

Area

Basement : 2525 sq/ft

Garage : 783 sq/ft

Main Floor : 2525 sq/ft

Porch : 616 sq/ft

* Total Square Footage typically only includes conditioned space and does not include garages, porches, bonus rooms, or decks.

Ceiling

Ceiling Details : Great room - Cathedral ceiling Dining -special boxed out ceiling to accent space

Main Ceiling : 9'

Roof

Primary Pitch : 8/12

Roof Type : Truss

Secondary Pitch : 4/12

Exterior Wall Framing

Framing : 2x6

Bedroom Features

Main Floor Bedrooms

Main Floor Master Bedroom

Split Bedrooms

Walk In Closet

Kitchen Features

Breakfast Nook

Eating Bar

Kitchen Island

Walk In Pantry Cabinet Pantry

Additional Room Features

Den Office Study Computer

Great Room Living Room

Main Floor Laundry

Mud Room

Storage Area

Garage Features

Oversized Garage

Side Entry Garage

Entryway

Friend S Entry

Lot Characteristics

Suited For Corner Lot

Suited For Sloping Lot

Suited For View Lot

Outdoor Spaces

Covered Front Porch

Covered Rear Porch

More

Economical To Build

Jack & Jill Bath

Energy Efficient Features

Energy Efficient Design

What's Included In This Plan Set


Plans are drawn to scale and include:
  • Foundation Plan(s): This page shows all necessary notations and dimensions including footings, support columns, walls, and excavated/unexcavated areas.
  • Floor Plan(s): Detailed plans (including 3D views) for each level showing room dimensions, wall partitions, windows and doors, fixture locations, and ceiling treatments.
  • Exterior Elevations: Views of the home (including 3D images) from all four sides showing exterior materials, roof slope, ridge heights, siding and trim notes.
  • Overhead Roof Plan(s): A view of the home from above showing roof pitch, peaks, valleys, and other details.
  • Cross Section(s): Available for most plans. A slice of the home from roof to foundation, showing relationships between floors, roof, and foundation.
  • Electrical Plan(s): Shows the location of lights, receptacles, switches, etc. Wiring sizes not included.
  • Detail Sheet(s): Details sheets for items like walls, chimneys, and fireplaces, including abbreviations, span tables.
  • Construction Notes / Detail(s): Special notes pertaining to the build of the residence, assembly information, any specific code notes.
  • Specification(s): Recommendations from the designer on particular systems, products, or appliances to be used in the construction of the home.

Note: Please allow 2-5 business days if you have selected alternate options like wall framing, foundation, or reversing the plans.

Not included: engineering, HVAC, plumbing sizes, wiring sizes.


» See important information before purchasing.
Questions? Call 1-866-445-9085

Plan Set

PDF Set:
$1011.50
PDF plan sets are best for fast electronic delivery and inexpensive local printing.
5 Copy Set:
$1122.00
5 printed plan sets mailed to you.
Three Copy and PDF Set:
$1211.25
3 printed plan sets mailed to you plus PDF plan sets are best for fast electronic delivery and inexpensive local printing.
5 Copy and PDF Set:
$1249.50
5 printed plan sets mailed to you plus PDF plan sets are best for fast electronic delivery and inexpensive local printing.

Foundation

Basement:
$0.00
Ideal for level lot, lower level of home partially or fully underground.
Floating Slab:
$297.50
A concrete slab that covers the ground with no anchoring, it simply floats. Typical for garages and workshop plans.
Monolithic Slab:
$297.50
A single concrete pour with thicker portions that replace footers under load bearing walls and all perimeter edges.
Crawlspace:
$361.25
Ideal for semi-sloped or level lot, home can be built off of grade, typically 18” - 48”.
Walk Out Basement:
$446.25
Ideal for a sloping lot, lower level with outdoor access.

Framing

Wood 2x6:
$0.00
Wood 2x6 Exterior Walls
Wood 2x4:
$250.75
Wood 2x4 Exterior Walls

Additional Options

Right-Reading Reverse:
$127.50
Choose this option to reverse your plans and to have the text and dimensions readable.
Additional Construction Sets:
$38.25
Additional hard copies of the plan (can be ordered at the time of purchase and within 90 days of the purchase date).
Audio Video Design:
$140.25
Receive an overlay sheet with suggested placement of audio and video components.
Comprehensive Material List:
$250.75
A complete list of building supplies needed to construct the infrastructure of your new house, plus an overlay of materials shown directly on your PDF (foundation to rooftop with interior and exterior materials), and a detailed, itemized door and window schedule showing all sizes and types. Please allow 5-7 Business Days for completion. Note, the Comprehensive list is only available with a PDF purchase. The Comprehensive list can be ordered no matter what additional plan options you have selected.
Construction Guide:
$33.15
Educate yourself about basic building ideas with these four detailed diagrams that discuss electrical, plumbing, mechanical, and structural topics.
Lighting Design:
$140.25
Receive an overlay sheet with suggested placement of lighting fixtures.
Mirror Reversed Sets:
$63.75
A mirror-reversed set is a printed copy of your house, resulting in the same image you would see if you held the drawing up to a mirror. Everything, including the text, is backward in relation to the original design. These kinds of drawing are typically used to reorient an original plan more advantageously on a site, either because the homeowner prefers it that way or because of limitations of the site itself. Note: Mirror reverse sets are only available with a 5 copy or 8 copy set. With a Reproducible, PDF, or CAD set, you can print mirrored copies locally. In addition: 5 Copy set selected, should only allow 4 mirrored sets to be selected. 8 Copy set selected, should only allow 7 mirrored sets to be selected.

* Alternate Foundations may take time to prepare.

** Options with a fee may take time to prepare. Please call to confirm.

Unless you buy an “unlimited” plan set or a multi-use license you may only build one home from a set of plans. Please call to verify if you intend to build more than once. Plan licenses are non-transferable and cannot be resold.