- Jump to:
- All (3)
- Floor plans (1)
Key Specs
2421
sq ft
4
Beds
2
Baths
1
Floors
2
Garages
Phone: 1-866-445-9085
See our Terms & Conditions and Privacy Policy.
Use Code CTBFALL
Residential Construction Guide
Learn Building Basics
This downloadable, 26-page guide is full of diagrams and details about plumbing, electrical, and more.
PLAN 44-124
This plan can be customized
Tell us about your desired changes so we can prepare an estimate for the design service. Click the button to submit your request for pricing, or call 1-866-445-9085 for assistance.
Plan Description
Floor Plans
Full Specs & Features
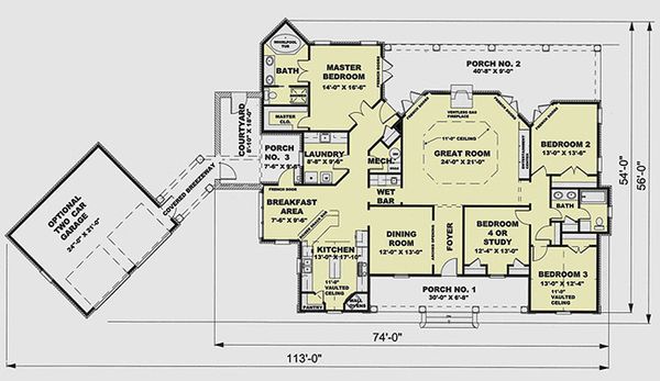
Dimension
Depth : 56'
Height : 27'
Width : 113'
Area
First Floor: 2421 sq/ft height 9'
Ceiling
Main Ceiling : 9'
Roof
Primary Pitch : 8:12
Roof Framing : Truss
Roof Type : Shingle
Exterior Wall Framing
Exterior Wall Finish : Brick/Stucco
Framing : 2"x4"
Bedroom Features
Main Floor Bedrooms
Main Floor Master Bedroom
Split Bedrooms
Walk In Closet
Kitchen Features
Breakfast Nook
Eating Bar
Kitchen Island
Walk In Pantry Cabinet Pantry
Additional Room Features
Den Office Study Computer
Great Room Living Room
Main Floor Laundry
Storage Area
Wet Bar
Garage Features
Detached Garage
Front Entry Garage
Lot Characteristics
Suited For Corner Lot
Suited For View Lot
Outdoor Spaces
Breezeway
Courtyard
Covered Front Porch
Covered Rear Porch
More
Suited For Vacation Home
Unusual Shape
Rooms
Bedroom 2:
226 sq/ft width 17' x depth 13' 4"
Bedroom 3:
164 sq/ft width 13' 4" x depth 12' 4"
Bedroom 4:
164 sq/ft width 12' 4" x depth 13' 4"
Courtyard:
158 sq/ft width 8' 10" x depth 18'
Dining Room:
156 sq/ft width 12' x depth 13'
Great Room:
504 sq/ft width 24' x depth 21'
Kitchen:
231 sq/ft width 13' x depth 17' 10"
Porch - Rear:
366 sq/ft width 40' 8" x depth 9'
What's Included In This Plan Set
- Foundation Plan(s): This page shows all necessary notations and dimensions including footings, support columns, walls, and excavated/unexcavated areas.
- Floor Plan(s): Detailed plans (including 3D views) for each level showing room dimensions, wall partitions, windows and doors, fixture locations, and ceiling treatments.
- Exterior Elevations: Views of the home (including 3D images) from all four sides showing exterior materials, roof slope, ridge heights, siding and trim notes.
- Overhead Roof Plan(s): A view of the home from above showing roof pitch, peaks, valleys, and other details.
- Cross Section(s): Available for most plans. A slice of the home from roof to foundation, showing relationships between floors, roof, and foundation.
- Electrical Plan(s): Shows the location of lights, receptacles, switches, etc. Wiring sizes not included.
- Detail Sheet(s): Details sheets for items like walls, chimneys, and fireplaces, including abbreviations, span tables.
- Construction Notes / Detail(s): Special notes pertaining to the build of the residence, assembly information, any specific code notes.
- Specification(s): Recommendations from the designer on particular systems, products, or appliances to be used in the construction of the home.
Note: Please allow 2-5 business days if you have selected alternate options like wall framing, foundation, or reversing the plans.
Not included: engineering, HVAC, plumbing sizes, wiring sizes.
Plan Set
$926.50
$1037.00
$1126.25
$1164.50
Foundation
$0.00
$297.50
$361.25
$420.75
$446.25
Framing
$0.00
$250.75
Additional Options
$127.50
$38.25
$140.25
$250.75
$33.15
$140.25
$63.75
* Alternate Foundations may take time to prepare.
** Options with a fee may take time to prepare. Please call to confirm.
 
 
                 
                         
                 
                 
                 
                 
                 
                 
                 
                 
                 
                