Don't lose your saved plans!  Create an account to access your saves whenever you want. See our Terms & Conditions and Privacy Policy.
ON SALE!

PLAN 51-1459

Photographs may show modified designs.

Save
  • Jump to:
  • All (9)
  • Floor plans (2)
Questions? Get Personalized Help

Key Specs


Plan Sq Ft

2225
sq ft

Plan Bedrooms

4
Beds

Plan Bathrooms

4
Baths

Plan Floors

2
Floors

Plan Garages

2
Garages

Select Plan Set Options

What's included?
$212.50
Additional Construction Sets$63.75/each

Additional hard copies of the plan (can be ordered at the time of purchase and within 90 days of the purchase date).

$140.25
$33.15
Subtotal
NOW $1742.50
You save $307.50 (15% savings)
Sale ends soon!
Best Price Guaranteed*
Also order by phone: 1-866-445-9085
 
Questions about building your home?
Get Personalized Help
We do our best to get back to you within 24 - 48 business hours.
Need an answer faster? Call now...
Phone: 1-866-445-9085
Hours:
Ready for Your Call 7 Days a Week
Every Day 7 am - 8:30 pm Eastern

See our Terms & Conditions and Privacy Policy.

 
Wow!
Cost to Build Reports
Only $1.99 Right Now
Use Code CTB2026
Our Cost to Build Report gives you a personalized estimate for building your home, based on your location, plan, and materials.
Get Cost To Build Report
Limit one per order.

Residential Construction Guide

Learn Building Basics

This downloadable, 26-page guide is full of diagrams and details about plumbing, electrical, and more.

PLAN 51-1459

This plan can be customized

Tell us about your desired changes so we can prepare an estimate for the design service. Click the button to submit your request for pricing, or call 1-866-445-9085 for assistance.

Modify This Plan

Plan Description


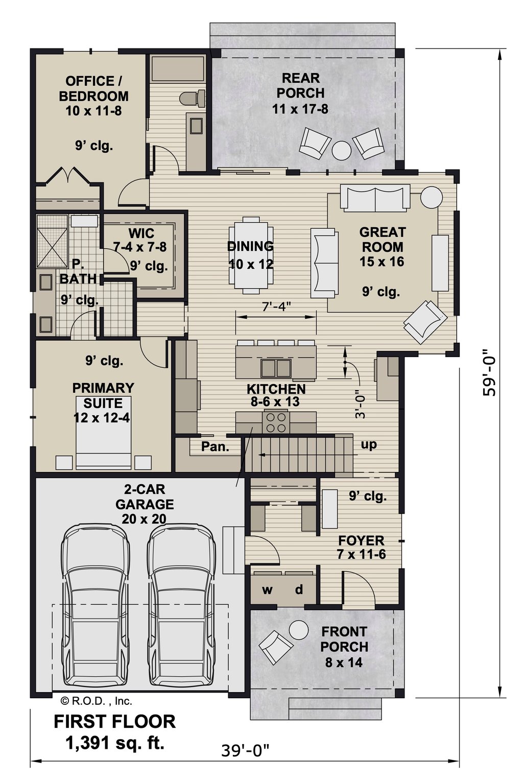
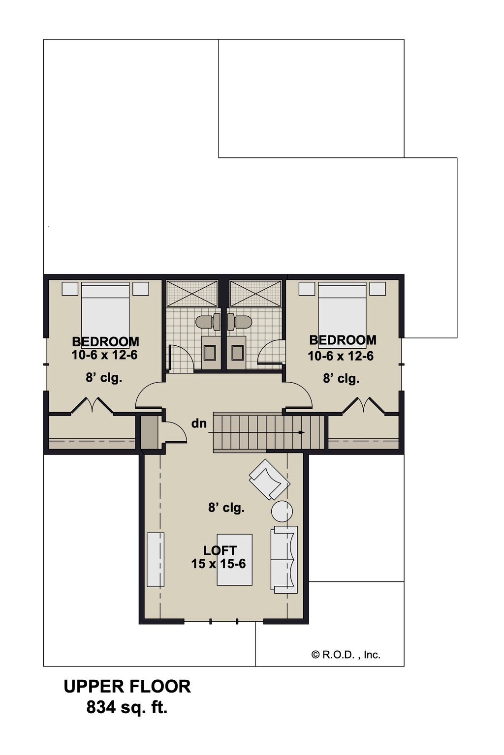
Welcome to this striking modern home, where the blend of wood, stone, and glass creates an exterior that is both captivating and timeless. Step inside to an open, airy floor plan designed for contemporary living. The elegant great room provides a spacious and inviting area for relaxation and entertainment. Adjacent to the great room, the spacious kitchen features a central island and flows seamlessly into the dining area, which offers direct access to the rear porch—perfect for indoor-outdoor living. The luxurious main level master suite serves as a true oasis, offering a serene retreat with all the amenities needed for ultimate comfort. A rear corner office provides a quiet space for work or study, ensuring productivity in a stylish setting. Covered front and rear porches extend the living space outdoors, perfect for enjoying the fresh air in any season. On the upper level, you’ll find two additional bedrooms, each designed with comfort and privacy in mind. A warm and inviting loft completes this level, providing a versatile space for relaxation or additional living needs. This modern home combines striking architectural elements with thoughtful design, making it an ideal sanctuary for contemporary living.

Full Specs & Features


Dimension

Depth : 59'

Width : 39'

Area

Main Floor : 1391 sq/ft

Porch : 112 sq/ft

Upper Floor : 834 sq/ft

* Total Square Footage typically only includes conditioned space and does not include garages, porches, bonus rooms, or decks.

Ceiling

Main Ceiling : 9'

Upper Ceiling Ft : 8'

Roof

Roof Framing : Truss

Exterior Wall Framing

Framing : 2x6

Bedroom Features

Main Floor Bedrooms

Main Floor Master Bedroom

Upstairs Bedrooms

Walk In Closet

Kitchen Features

Breakfast Nook

Kitchen Island

Additional Room Features

Den Office Study Computer

Great Room Living Room

Loft

Main Floor Laundry

Garage Features

Front Entry Garage

Lot Characteristics

Suited For Corner Lot

Suited For Narrow Lot

Outdoor Spaces

Covered Front Porch

Covered Rear Porch

More

Economical To Build

Energy Efficient Features

Energy Efficient Design

What's Included In This Plan Set


Plans are typically drawn to ¼” scale and include:
  • Foundation Plan(s): This page shows all necessary notations and dimensions including footings, support columns, walls, and excavated/unexcavated areas.
  • Floor Plan(s): Detailed plans, drawn to 1/4" scale for each level showing room dimensions, wall partitions, windows, etc.
  • Exterior Elevations: A blueprint picture of all four sides showing exterior materials and measurements. Drawn to 1/4" and 1/8" scale.
  • Overhead Roof Plan(s): A view of the home from above showing roof pitch, peaks, valleys, and other details.
  • Cross Section(s): A slice of the home from roof to foundation, showing relationships between floors, roof, and foundation.
  • Construction Notes / Detail(s): Shows basic parts and assemblies recommended for the home so the builder can see how things come together.
  • Other Note(s): This plan will not contain an electrical layout.
» See important information before purchasing.
Questions? Call 1-866-445-9085

Plan Set

PDF Set:
$1742.50
PDF plan sets are best for fast electronic delivery and inexpensive local printing.
5 Copy Set:
$1912.50
5 printed plan sets mailed to you.
5 Copy and PDF Set:
$1997.50
5 printed plan sets mailed to you plus PDF plan sets are best for fast electronic delivery and inexpensive local printing.
8 Copy Set:
$1997.50
8 printed plan sets mailed to you.
CAD Set:
$2295.00
For use by design professionals to make substantial changes to your house plan and inexpensive local printing.
Single Set:
$1742.50
One printed set for bidding purposes only. Not a legal building set for construction.

Foundation

Crawlspace:
$0.00
Ideal for semi-sloped or level lot, home can be built off of grade, typically 18” - 48”.
Slab:
$340.00
Ideal for level lot, single layer concrete poured directly on grade.

Framing

Wood 2x6:
$0.00
Wood 2x6 Exterior Walls

Additional Options

Right-Reading Reverse:
$212.50
Choose this option to reverse your plans and to have the text and dimensions readable.
Additional Construction Sets:
$63.75
Additional hard copies of the plan (can be ordered at the time of purchase and within 90 days of the purchase date).
Audio Video Design:
$140.25
Receive an overlay sheet with suggested placement of audio and video components.
Construction Guide:
$33.15
Educate yourself about basic building ideas with these four detailed diagrams that discuss electrical, plumbing, mechanical, and structural topics.

* Alternate Foundations may take time to prepare.

** Options with a fee may take time to prepare. Please call to confirm.

Unless you buy an “unlimited” plan set or a multi-use license you may only build one home from a set of plans. Please call to verify if you intend to build more than once. Plan licenses are non-transferable and cannot be resold.

Browse Similar Plans