Don't lose your saved plans!  Create an account to access your saves whenever you want. See our Terms & Conditions and Privacy Policy.

PLAN 923-454

Photographs may show modified designs.

Save
  • Jump to:
  • All (12)
  • Floor plans (3)
Questions? Get Personalized Help
Home  >  Style  >  Cottage

Key Specs


Plan Sq Ft

2147
sq ft

Plan Bedrooms

3
Beds

Plan Bathrooms

2.5
Baths

Plan Floors

3
Floors

Plan Garages

2
Garages

Select Plan Set Options

What's included?
$299.00
Additional Construction Sets$80.00/each

Additional hard copies of the plan (can be ordered at the time of purchase and within 90 days of the purchase date).

$500.00
$165.00
$295.00
$39.00
$165.00
Subtotal
$1000.00
Best Price Guaranteed*
Also order by phone: 1-866-445-9085
 
Questions about building your home?
Get Personalized Help
We do our best to get back to you within 24 - 48 business hours.
Need an answer faster? Call now...
Phone: 1-866-445-9085
Hours:
Ready for Your Call 7 Days a Week
Every Day 7 am - 8:30 pm Eastern

See our Terms & Conditions and Privacy Policy.

 
Wow!
Cost to Build Reports
Only $1.99 Right Now
Use Code CTB2026
Our Cost to Build Report gives you a personalized estimate for building your home, based on your location, plan, and materials.
Get Cost To Build Report
Limit one per order.

Residential Construction Guide

Learn Building Basics

This downloadable, 26-page guide is full of diagrams and details about plumbing, electrical, and more.

PLAN 923-454

This plan can be customized

Tell us about your desired changes so we can prepare an estimate for the design service. Click the button to submit your request for pricing, or call 1-866-445-9085 for assistance.

Modify This Plan

Plan Description


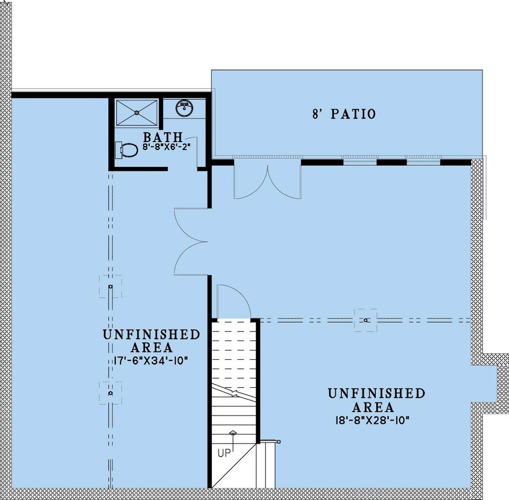
This cottage design floor plan is 2147 sq ft and has 3 bedrooms and 2.5 bathrooms.

Full Specs & Features


Dimension

Depth: 52' 4"

Width: 79' 4"

Area

Garage: 702 sq/ft

Lower Floor: 1287 sq/ft

Main Floor: 1417 sq/ft

Porch: 552 sq/ft

Storage: 702 sq/ft

Upper Floor: 730 sq/ft

* Total Square Footage typically only includes conditioned space and does not include garages, porches, bonus rooms, or decks.

Ceiling

Lower Ceiling: 10'

Main Ceiling: 9'

Upper Ceiling Ft: 8'

Roof

Primary Pitch: 9:12

Roof Framing: Stick

Roof Load: 45lbs

Roof Type: Metal

Secondary Pitch: 4:12

Exterior Wall Framing

Exterior Wall Finish: Board & Batten

Framing: 2x4

Insulation: R13

Bedroom Features

Guest Suite

Lower Level Bedrooms

Main Floor Master Bedroom

Split Bedrooms

Upstairs Bedrooms

Walk In Closet

Kitchen Features

Eating Bar

Kitchen Island

Walk In Pantry Cabinet Pantry

Additional Room Features

Den Office Study Computer

Main Floor Laundry

Unfinished Future Space

Garage Features

Rear Garage

Outdoor Spaces

Covered Front Porch

Covered Rear Porch

Wrap Around Porch

What's Included In This Plan Set


Plans are typically drawn to ¼” scale and include:
  • Foundation Plan(s): Most plans are available with a slab or crawlspace foundation. Optional walkout style basement (three walls masonry with a wood framed rear wall with notes for the builder to locate the windows and doors) and optional full basement foundation available if the plan allows, at an additional cost. (Walk out is not shown on elevations unless finished walk out.)
  • Floor Plan(s): Each home plan includes the floor plan showing the dimensioned locations of walls, doors, and windows as well as a schematic electrical layout.
  • Exterior Elevations: All plans include the exterior elevations (front, rear, right and left) that show and describe the finished materials of the house.
  • Overhead Roof Plan(s): This is a “bird’s eye” view showing the roof slopes, ridges, valleys and any saddles.
  • Cross Section(s): Cross section views available for an additional fee.
  • Building Section(s): The building sections are vertical cuts through the house and the stairs showing floor, ceiling and roof height information. **Cross section views available for an additional fee. ** (cut throughs where applicable)
  • Construction Notes / Detail(s): These are included for many interior and exterior conditions that require more specific information for their construction.
» See important information before purchasing.
Questions? Call 1-866-445-9085

Plan Set

PDF Set:
$1000.00
PDF plan sets are best for fast electronic delivery and inexpensive local printing.
5 Copy Set:
$1200.00
5 printed plan sets mailed to you.
5 Copy and PDF Set:
$1450.00
5 printed plan sets mailed to you plus PDF plan sets are best for fast electronic delivery and inexpensive local printing.
CAD Set:
$2000.00
For use by design professionals to make substantial changes to your house plan and inexpensive local printing.
CAD Single Build:
$2000.00
For use by design professionals to make substantial changes to your house plan and inexpensive local printing.
CAD and PDF Set:
$10000.00
For use by design professionals to make substantial changes to your house plan and inexpensive local printing plus PDF plan sets are best for fast electronic delivery and inexpensive local printing.

Foundation

Daylight Basement:
$0.00
Ideal for sloping lot, lower level of home partially underground.
Walk Out Basement:
$0.00
Ideal for a sloping lot, lower level with outdoor access.
Basement:
$299.00
Ideal for level lot, lower level of home partially or fully underground.
Crawlspace:
$299.00
Ideal for semi-sloped or level lot, home can be built off of grade, typically 18” - 48”.
Slab:
$299.00
Ideal for level lot, single layer concrete poured directly on grade.

Framing

Wood 2x4:
$0.00
Wood 2x4 Exterior Walls
Wood 2x6:
$299.00
Wood 2x6 Exterior Walls

Additional Options

Right-Reading Reverse:
$299.00
Choose this option to reverse your plans and to have the text and dimensions readable.
Additional Construction Sets:
$80.00
Additional hard copies of the plan (can be ordered at the time of purchase and within 90 days of the purchase date).
Additional Use License:
$500.00
Allows you to build one more home for each additional license purchased.
Audio Video Design:
$165.00
Receive an overlay sheet with suggested placement of audio and video components.
Comprehensive Material List:
$295.00
A complete list of building supplies needed to construct the infrastructure of your new house, plus an overlay of materials shown directly on your PDF (foundation to rooftop with interior and exterior materials), and a detailed, itemized door and window schedule showing all sizes and types. Please allow 5-7 Business Days for completion. Note, the Comprehensive list is only available with a PDF purchase. The Comprehensive list can be ordered no matter what additional plan options you have selected.
Construction Guide:
$39.00
Educate yourself about basic building ideas with these four detailed diagrams that discuss electrical, plumbing, mechanical, and structural topics.
Lighting Design:
$165.00
Receive an overlay sheet with suggested placement of lighting fixtures.

* Alternate Foundations may take time to prepare.

** Options with a fee may take time to prepare. Please call to confirm.

Unless you buy an “unlimited” plan set or a multi-use license you may only build one home from a set of plans. Please call to verify if you intend to build more than once. Plan licenses are non-transferable and cannot be resold.