Don't lose your saved plans!  Create an account to access your saves whenever you want. See our Terms & Conditions and Privacy Policy.
ON SALE!

PLAN 945-96

Photographs may show modified designs.

Save
  • Jump to:
  • All (5)
  • Floor plans (2)
Questions? Get Personalized Help

Key Specs


Plan Sq Ft

2060
sq ft

Plan Bedrooms

3
Beds

Plan Bathrooms

3
Baths

Plan Floors

1
Floors

Plan Garages

3
Garages

Select Plan Set Options

What's included?
$425.00
$85.00
$33.15
$85.00
Subtotal
NOW $2125.00
You save $375.00 (15% savings)
Sale ends soon!
Best Price Guaranteed*
Also order by phone: 1-866-445-9085
 
Questions about building your home?
Get Personalized Help
We do our best to get back to you within 24 - 48 business hours.
Need an answer faster? Call now...
Phone: 1-866-445-9085
Hours:
Ready for Your Call 7 Days a Week
Every Day 7 am - 8:30 pm Eastern

See our Terms & Conditions and Privacy Policy.

 
Wow!
Cost to Build Reports
Only $1.99 Right Now
Use Code CTBFALL
Our Cost to Build Report gives you a personalized estimate for building your home, based on your location, plan, and materials.
Get Cost To Build Report
Limit one per order.

Residential Construction Guide

Learn Building Basics

This downloadable, 26-page guide is full of diagrams and details about plumbing, electrical, and more.

PLAN 945-96

This plan can be customized

Tell us about your desired changes so we can prepare an estimate for the design service. Click the button to submit your request for pricing, or call 1-866-445-9085 for assistance.

Modify This Plan

Plan Description


This traditional design floor plan is 2060 sq ft and has 3 bedrooms and 3 bathrooms.

Full Specs & Features


Dimension

Depth : 57'

Height : 26' 5"

Width : 74'

Area

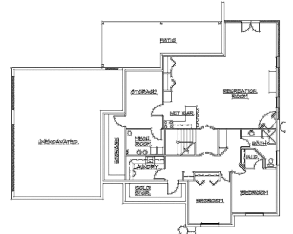
Basement Unfinished: 1851 sq/ft

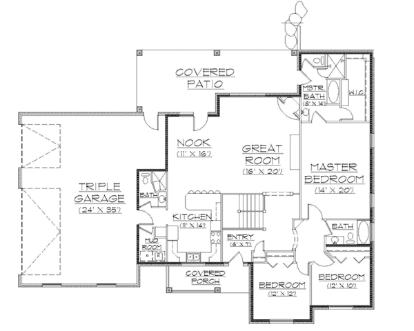
First Floor: 2060 sq/ft height 8'

Garage: 968 sq/ft height 8'

* Total Square Footage typically only includes conditioned space and does not include garages, porches, bonus rooms, or decks.

Roof

Primary Pitch : 8:12

Roof Framing : Truss

Roof Type : Asphalt

Exterior Wall Framing

Exterior Wall Finish : Brick/Stucco

Framing : Wood - 2x6

Bedroom Features

Fireplace

Main Floor Master Bedroom

Kitchen Features

Breakfast Nook

Kitchen Island

Additional Room Features

Family Room Keeping Room

Hobby Rec Room Game Room

Main Floor Laundry

Mud Room

Open Floor Plan

Vaulted / Cathedral Ceilings

Garage Features

Side Entry Garage

Outdoor Spaces

Courtyard

Covered Front Porch

Covered Rear Porch

What's Included In This Plan Set


All plans are drawn at ¼" scale or larger and include : IMPORTANT NOTE: Study Set Includes: floor plans (main / upper / basement (if available) ) - exterior elevations.Plans are typically drawn to ¼” scale and include:
  • Foundation Plan(s): Drawn to 1/4" scale, this page shows all necessary notations and dimensions including support columns, walls and excavated and unexcavated areas.
  • Floor Plan(s): Detailed plans, drawn to 1/4" scale for each level showing room dimensions, wall partitions, windows, etc. as well as the location of electrical outlets and switches.
  • Exterior Elevations: A blueprint picture of all four sides showing exterior materials and measurements.
  • Overhead Roof Plan(s): A view of the home from above showing roof pitch, peaks, valleys, and other details.
  • Cross Section(s): A vertical cutaway view of the house from roof to foundation showing details of framing, construction, flooring and roofing.
  • Construction Notes / Detail(s): Shows basic parts and assemblies recommended for the home so the builder can see how things come together.
» See important information before purchasing.
Questions? Call 1-866-445-9085

Plan Set

PDF Set:
$2125.00
PDF plan sets are best for fast electronic delivery and inexpensive local printing.
Reproducible Set:
$2125.00
For inexpensive local printing / making minor adjustments by hand. 1 printed set, typically on Bond paper.
Study Set:
$340.00
One electronic set for bidding purposes only. Not a legal building set for construction.

Foundation

Basement:
$0.00
Ideal for level lot, lower level of home partially or fully underground.
Daylight Basement:
$0.00
Ideal for sloping lot, lower level of home partially underground.

Framing

Wood 2x6:
$0.00
Wood 2x6 Exterior Walls

Additional Options

Right-Reading Reverse:
$425.00
Choose this option to reverse your plans and to have the text and dimensions readable.
Audio Video Design:
$85.00
Receive an overlay sheet with suggested placement of audio and video components.
Construction Guide:
$33.15
Educate yourself about basic building ideas with these four detailed diagrams that discuss electrical, plumbing, mechanical, and structural topics.
Lighting Design:
$85.00
Receive an overlay sheet with suggested placement of lighting fixtures.

* Alternate Foundations may take time to prepare.

** Options with a fee may take time to prepare. Please call to confirm.

Unless you buy an “unlimited” plan set or a multi-use license you may only build one home from a set of plans. Please call to verify if you intend to build more than once. Plan licenses are non-transferable and cannot be resold.