Don't lose your saved plans!  Create an account to access your saves whenever you want. See our Terms & Conditions and Privacy Policy.
ON SALE!

PLAN 1066-136

Photographs may show modified designs.

Save
  • Jump to:
  • All (8)
  • Floor plans (2)
Questions? Get Personalized Help
Home  >  Style  >  Contemporary

Key Specs


Plan Sq Ft

2037
sq ft

Plan Bedrooms

3
Beds

Plan Bathrooms

2.5
Baths

Plan Floors

2
Floors

Plan Garages

2
Garages

Select Plan Set Options

What's included?
$212.50
$140.25
$250.75
$33.15
$140.25
Mirror Reversed Sets$297.50

Printed sets showing plan in reverse, text and dimensions will be backwards.

Subtotal
NOW $866.15
You save $152.85 (15% savings)
Sale ends soon!
Best Price Guaranteed*
Also order by phone: 1-866-445-9085
 
Questions about building your home?
Get Personalized Help
We do our best to get back to you within 24 - 48 business hours.
Need an answer faster? Call now...
Phone: 1-866-445-9085
Hours:
Ready for Your Call 7 Days a Week
Every Day 7 am - 8:30 pm Eastern

See our Terms & Conditions and Privacy Policy.

 
Wow!
Cost to Build Reports
Only $1.99 Right Now
Use Code CTBFALL
Our Cost to Build Report gives you a personalized estimate for building your home, based on your location, plan, and materials.
Get Cost To Build Report
Limit one per order.

Residential Construction Guide

Learn Building Basics

This downloadable, 26-page guide is full of diagrams and details about plumbing, electrical, and more.

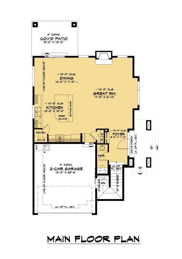
PLAN 1066-136

This plan can be customized

Tell us about your desired changes so we can prepare an estimate for the design service. Click the button to submit your request for pricing, or call 1-866-445-9085 for assistance.

Modify This Plan

Plan Description


Beautiful contemporary & Northwest style single family home with two levels and covered outdoor areas.

Full Specs & Features


Dimension

Depth : 35'

Height : 27' 8"

Width : 57'

Area

Garage : 369 sq/ft

Main Floor : 950 sq/ft

Patios : 141 sq/ft

Porch : 95 sq/ft

Upper Floor : 1087 sq/ft

* Total Square Footage typically only includes conditioned space and does not include garages, porches, bonus rooms, or decks.

Ceiling

Garage Ceiling : 11' 6"

Main Ceiling : 10'

Upper Ceiling Ft : 9'

Roof

Primary Pitch : 5/12

Roof Framing : Truss

Roof Load : 25

Roof Type : Composition Shingles

Exterior Wall Framing

Exterior Wall Finish : Hardie Panels, Siding, Lap Siding

Framing : 2x6

Insulation : R21

Bedroom Features

Upstairs Bedrooms

Upstairs Master Bedrooms

Walk In Closet

Kitchen Features

Breakfast Nook

Eating Bar

Kitchen Island

Walk In Pantry Cabinet Pantry

Additional Room Features

Great Room Living Room

Upstairs Laundry

Garage Features

Front Entry Garage

Outdoor Spaces

Covered Front Porch

Covered Rear Porch

What's Included In This Plan Set


All plans are drawn at ¼” scale or larger and include :

Plans are typically drawn to ¼” scale and include:

  • Cover Sheet: Drawing index, designer contact info, plan name/number, legal disclaimers. 3D Rendering and Project Information.
  • Foundation Plan(s): This page shows all necessary notations and dimensions including footings, support columns, walls, and excavated/unexcavated areas.
  • Floor Plan(s): Detailed plans for each level showing room dimensions, wall partitions, windows and doors, fixture locations, and ceiling treatments.
  • Exterior Elevations: Views of the home from all four sides showing exterior materials, roof slope, ridge heights, siding and trim notes.
  • Overhead Roof Plan(s): A view of the home from above showing roof pitch, peaks, valleys, and other details.
  • Cross Section(s): A slice of the home from roof to foundation, showing relationships between floors, roof, and foundation.
  • Construction Notes / Detail(s): Shows basic parts and assemblies recommended for the home so the builder can see how things come together.
  • Wall Section(s): Detailed drawings showing wall connections, from foundation to the roof, wall connections to foundation, window installation, siding installation, stair details, and more.
  • Door / Window Schedule(s): A list of all the doors and windows needed to construct the house. This can help with estimating materials costs.
*Please note that any structural engineering sheets included with this plan set are for reference only.
» See important information before purchasing.
Questions? Call 1-866-445-9085

Plan Set

PDF Set:
$866.15
PDF plan sets are best for fast electronic delivery and inexpensive local printing.
5 Copy Set:
$1121.15
5 printed plan sets mailed to you.
8 Copy Set:
$1248.65
8 printed plan sets mailed to you.
CAD Set:
$1644.75
For use by design professionals to make substantial changes to your house plan and inexpensive local printing.

Foundation

Crawlspace:
$0.00
Ideal for semi-sloped or level lot, home can be built off of grade, typically 18” - 48”.
Slab:
$255.00
Ideal for level lot, single layer concrete poured directly on grade.

Framing

Wood 2x6:
$0.00
Wood 2x6 Exterior Walls

Additional Options

Right-Reading Reverse:
$212.50
Choose this option to reverse your plans and to have the text and dimensions readable.
Audio Video Design:
$140.25
Receive an overlay sheet with suggested placement of audio and video components.
Comprehensive Material List:
$250.75
A complete list of building supplies needed to construct the infrastructure of your new house, plus an overlay of materials shown directly on your PDF (foundation to rooftop with interior and exterior materials), and a detailed, itemized door and window schedule showing all sizes and types. Please allow 5-7 Business Days for completion. Note, the Comprehensive list is only available with a PDF purchase. The Comprehensive list can be ordered no matter what additional plan options you have selected.
Construction Guide:
$33.15
Educate yourself about basic building ideas with these four detailed diagrams that discuss electrical, plumbing, mechanical, and structural topics.
Lighting Design:
$140.25
Receive an overlay sheet with suggested placement of lighting fixtures.
Mirror Reversed Sets:
$297.50
A mirror-reversed set is a printed copy of your house, resulting in the same image you would see if you held the drawing up to a mirror. Everything, including the text, is backward in relation to the original design. These kinds of drawing are typically used to reorient an original plan more advantageously on a site, either because the homeowner prefers it that way or because of limitations of the site itself. Note: Mirror reverse sets are only available with a 5 copy or 8 copy set. With a Reproducible, PDF, or CAD set, you can print mirrored copies locally. In addition: 5 Copy set selected, should only allow 4 mirrored sets to be selected. 8 Copy set selected, should only allow 7 mirrored sets to be selected.

* Alternate Foundations may take time to prepare.

** Options with a fee may take time to prepare. Please call to confirm.

Unless you buy an “unlimited” plan set or a multi-use license you may only build one home from a set of plans. Please call to verify if you intend to build more than once. Plan licenses are non-transferable and cannot be resold.

Browse Similar Plans