Don't lose your saved plans!  Create an account to access your saves whenever you want. See our Terms & Conditions and Privacy Policy.
ON SALE!

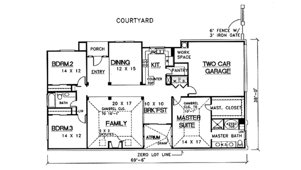
PLAN 974-17

Photographs may show modified designs.

Save
  • Jump to:
  • All (2)
  • Floor plans (1)
Questions? Get Personalized Help

Key Specs


Plan Sq Ft

1996
sq ft

Plan Bedrooms

3
Beds

Plan Bathrooms

2
Baths

Plan Floors

1
Floors

Plan Garages

2
Garages

Select Plan Set Options

What's included?
Additional Construction Sets$32.00/each

Additional hard copies of the plan (can be ordered at the time of purchase and within 90 days of the purchase date).

$80.00
$31.20
$80.00
Mirror Reversed Sets$40.00

Printed sets showing plan in reverse, text and dimensions will be backwards.

Subtotal
NOW $483.20
You save $120.80 (20% savings)
Sale ends soon!
Best Price Guaranteed*
Also order by phone: 1-866-445-9085
 
Questions about building your home?
Get Personalized Help
We do our best to get back to you within 24 - 48 business hours.
Need an answer faster? Call now...
Phone: 1-866-445-9085
Hours:
Ready for Your Call 7 Days a Week
Every Day 7 am - 8:30 pm Eastern

See our Terms & Conditions and Privacy Policy.

 
Wow!
Cost to Build Reports
Only $1.99 Right Now
Use Code CTB2026
Our Cost to Build Report gives you a personalized estimate for building your home, based on your location, plan, and materials.
Get Cost To Build Report
Limit one per order.

Residential Construction Guide

Learn Building Basics

This downloadable, 26-page guide is full of diagrams and details about plumbing, electrical, and more.

PLAN 974-17

This plan can be customized

Tell us about your desired changes so we can prepare an estimate for the design service. Click the button to submit your request for pricing, or call 1-866-445-9085 for assistance.

Modify This Plan

Plan Description


This ranch design floor plan is 1996 sq ft and has 3 bedrooms and 2 bathrooms.

Full Specs & Features


Dimension

Depth : 70'

Width : 38'

Area

First Floor: 1996 sq/ft height 8'

* Total Square Footage typically only includes conditioned space and does not include garages, porches, bonus rooms, or decks.

Exterior Wall Framing

Exterior Wall Finish : Brick/Siding

Framing : Wood - 2x4

Bedroom Features

Fireplace

Formal Dining Room

Split Bedrooms

Walk In Closet

Kitchen Features

Breakfast Nook

Kitchenette Wet Bar

Walk In Pantry Cabinet Pantry

Additional Room Features

Family Room Keeping Room

Workshop

Outdoor Spaces

Courtyard

What's Included In This Plan Set


All plans are drawn at ¼” scale or larger and include :

  • Foundation Plan: This page shows all necessary notations and dimensions including support columns, walls, and excavated/unexcavated areas.
  • Exterior Elevations: Views of the home from all four sides showing exterior materials and measurements.
  • Floor Plan(s): Detailed plans for each level showing room dimensions, wall partitions, windows and doors, etc.
  • Cross Section: A slice of the home from roof to foundation, showing important details like stairs and wall construction.
  • Overhead Roof Plan(s): A view of the home from above showing roof pitch, peaks, valleys, and other details.
  • Construction Notes and Details: Shows the builder how things come together, like walls, the chimney, insulation, and more.
» See important information before purchasing.
Questions? Call 1-866-445-9085

Plan Set

5 Copy Set:
$483.20
5 printed plan sets mailed to you.
8 Copy Set:
$553.60
8 printed plan sets mailed to you.
Single Set:
$435.20
One printed set for bidding purposes only. Not a legal building set for construction.

Foundation

Slab:
$0.00
Ideal for level lot, single layer concrete poured directly on grade.

Framing

Wood 2x4:
$0.00
Wood 2x4 Exterior Walls

Additional Options

Additional Construction Sets:
$32.00
Additional hard copies of the plan (can be ordered at the time of purchase and within 90 days of the purchase date).
Audio Video Design:
$80.00
Receive an overlay sheet with suggested placement of audio and video components.
Construction Guide:
$31.20
Educate yourself about basic building ideas with these four detailed diagrams that discuss electrical, plumbing, mechanical, and structural topics.
Lighting Design:
$80.00
Receive an overlay sheet with suggested placement of lighting fixtures.
Mirror Reversed Sets:
$40.00
A mirror-reversed set is a printed copy of your house, resulting in the same image you would see if you held the drawing up to a mirror. Everything, including the text, is backward in relation to the original design. These kinds of drawing are typically used to reorient an original plan more advantageously on a site, either because the homeowner prefers it that way or because of limitations of the site itself. Note: Mirror reverse sets are only available with a 5 copy or 8 copy set. With a Reproducible, PDF, or CAD set, you can print mirrored copies locally. In addition: 5 Copy set selected, should only allow 4 mirrored sets to be selected. 8 Copy set selected, should only allow 7 mirrored sets to be selected.

* Alternate Foundations may take time to prepare.

** Options with a fee may take time to prepare. Please call to confirm.

Unless you buy an “unlimited” plan set or a multi-use license you may only build one home from a set of plans. Please call to verify if you intend to build more than once. Plan licenses are non-transferable and cannot be resold.

Browse Similar Plans