- Jump to:
- All (3)
- Floor plans (2)
Key Specs
1994
sq ft
3
Beds
2.5
Baths
2
Floors
2
Garages
Phone: 1-866-445-9085
See our Terms & Conditions and Privacy Policy.
Use Code CTBFALL
Residential Construction Guide
Learn Building Basics
This downloadable, 26-page guide is full of diagrams and details about plumbing, electrical, and more.
PLAN 315-116
This plan can be customized
Tell us about your desired changes so we can prepare an estimate for the design service. Click the button to submit your request for pricing, or call 1-866-445-9085 for assistance.
Plan Description
Floor Plans
Full Specs & Features
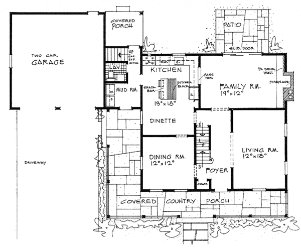
Dimension
Depth : 31'
Height : 24'
Width : 63'
Area
First Floor: 1145 sq/ft
Second Floor: 849 sq/ft
Exterior Wall Framing
Exterior Wall Finish : Siding
Framing : Wood - 2x4
Bedroom Features
Fireplace
Upstairs Master Bedrooms
Walk In Closet
Kitchen Features
Kitchen Island
Additional Room Features
Family Room Keeping Room
Mud Room
Storage Area
Outdoor Spaces
Courtyard
Covered Front Porch
Covered Rear Porch
Rooms
Bedroom 2:
135 sq/ft width 12' x depth 11' 4"
Bedroom 3:
144 sq/ft width 12' x depth 12'
Dining Room:
144 sq/ft width 12' x depth 12'
Family Room:
228 sq/ft width 19' x depth 12'
Kitchen:
234 sq/ft width 13' x depth 18'
Living Room:
216 sq/ft width 12' x depth 18'
What's Included In This Plan Set
- Foundation Plan(s): This page shows all necessary notations and dimensions including footings, support columns, walls, and excavated/unexcavated areas.
- Floor Plan(s): Detailed plans for each level showing room dimensions, wall partitions, windows and doors, fixture locations, and ceiling treatments.
- Exterior Elevations: Views of the home from all four sides showing exterior materials, roof slope, ridge heights, siding and trim notes.
- Overhead Roof Plan(s): Roof pitches and overhangs noted on the cross-section. Overhead not included.
- Cross Section(s): A slice of the home from roof to foundation, showing relationships between floors, roof, and foundation.
- Construction Notes / Detail(s): Shows basic parts and assemblies recommended for the home so the builder can see how things come together.
Plan Set
$803.25
$892.50
$892.50
$624.75
Foundation
$0.00
Framing
$0.00
Additional Options
$51.00
$85.00
$33.15
$85.00
$51.00
* Alternate Foundations may take time to prepare.
** Options with a fee may take time to prepare. Please call to confirm.
 
 
                 
                         
                         
                 
                 
                 
                 
                 
                 
                 
                 
                 
                