Don't lose your saved plans!  Create an account to access your saves whenever you want. See our Terms & Conditions and Privacy Policy.
ON SALE!

PLAN 124-1120

Photographs may show modified designs.

Save
  • Jump to:
  • All (6)
  • Floor plans (2)
Questions? Get Personalized Help

Key Specs


Plan Sq Ft

1990
sq ft

Plan Bedrooms

3
Beds

Plan Bathrooms

2.5
Baths

Plan Floors

1
Floors

Plan Garages

2
Garages

Select Plan Set Options

What's included?
$255.00
Additional Construction Sets$46.75/each

Additional hard copies of the plan (can be ordered at the time of purchase and within 90 days of the purchase date).

$701.25
$140.25
$250.75
$33.15
$140.25
Subtotal
NOW $871.25
You save $153.75 (15% savings)
Sale ends soon!
Best Price Guaranteed*
Also order by phone: 1-866-445-9085
 
Questions about building your home?
Get Personalized Help
We do our best to get back to you within 24 - 48 business hours.
Need an answer faster? Call now...
Phone: 1-866-445-9085
Hours:
Ready for Your Call 7 Days a Week
Every Day 7 am - 8:30 pm Eastern

See our Terms & Conditions and Privacy Policy.

 
Wow!
Cost to Build Reports
Only $1.99 Right Now
Use Code CTBFALL
Our Cost to Build Report gives you a personalized estimate for building your home, based on your location, plan, and materials.
Get Cost To Build Report
Limit one per order.

Residential Construction Guide

Learn Building Basics

This downloadable, 26-page guide is full of diagrams and details about plumbing, electrical, and more.

PLAN 124-1120

This plan can be customized

Tell us about your desired changes so we can prepare an estimate for the design service. Click the button to submit your request for pricing, or call 1-866-445-9085 for assistance.

Modify This Plan

Plan Description


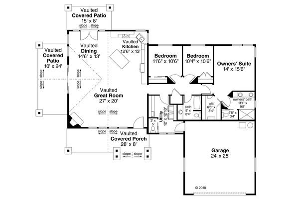
This country design floor plan is 1990 sq ft and has 3 bedrooms and 2.5 bathrooms.

Full Specs & Features


Dimension

Depth : 65'

Height : 20' 11"

Width : 75'

Area

Garage : 635 sq/ft

Main Floor : 1990 sq/ft

* Total Square Footage typically only includes conditioned space and does not include garages, porches, bonus rooms, or decks.

Ceiling

Main Ceiling : 9'

Roof

Primary Pitch : 8/12

Roof Framing : Truss/Stick

Roof Load : 25

Exterior Wall Framing

Exterior Wall Finish : Lap/Stone/Shingles

Framing : 2x6

Bedroom Features

Main Floor Bedrooms

Main Floor Master Bedroom

Walk In Closet

Kitchen Features

Breakfast Nook

Kitchen Island

Additional Room Features

Great Room Living Room

Main Floor Laundry

Garage Features

Front Entry Garage

Lot Characteristics

Suited For View Lot

Outdoor Spaces

Covered Front Porch

Covered Rear Porch

More

Economical To Build

Suited For Vacation Home

Rooms

Bedroom 2:

width 11' 6" x depth 10' 6"

Bedroom 3:

width 10' 4" x depth 10' 6"

Covered Front Porch:

width 28' x depth 8'

Covered Rear Porch:

width 15' x depth 8'

Covered Side Porch:

width 10' x depth 24'

Dining Room:

width 14' 6" x depth 13'

Great Room:

width 27' x depth 20'

Hall Bath :

width 8' x depth 8' 4"

Kitchen:

width 12' 6" x depth 13'

Master Bath:

width 11' 4" x depth 9' 8"

Master Bath WC:

width 5' 8" x depth 3' 4"

Master Bedroom:

width 14' x depth 15' 6"

Master Closet:

width 6' 6" x depth 8' 4"

Utility Room:

width 12' x depth 12' 10"

Utility Room WC:

width 3' x depth 5'

What's Included In This Plan Set


Please note, if ordering a PDF Print Set, it is not-modifiable. The CAD set is best for making local modifications. The "5 set + PDF" combo contains a non-modifiable PDF Print Set.

Each plan set is drawn at 1/4"=1' scale and includes the following drawings:
  • Artist's Rendering: An artist's drawing of the home, usually viewed from the front, and general construction notes.
  • Elevations: Shows the front, sides, and rear, including exterior materials, trim sizes, roof pitches, etc.
  • Main Floor Plan: Shows placement and dimensions of walls, doors, & windows. Includes the location of appliances, plumbing fixtures, beams, ceiling heights, etc.
  • Second Floor Plan (if any): Shows the second floor in the same detail as the main floor. Includes second floor framing and details.
  • Foundation Plan: Shows the location of all concrete footings, floor beams, first floor framing, and foundation details. If there is a basement, a basement plan is included which shows all basement details. Foundation types vary; please call to confirm the foundation type of the plan you are interested in.
  • Floor Framing Plan (if any): Shows location and spacing of floor joists and supporting walls or beams.
  • Roof Framing Plan: Shows roof outlines, conventional framing/trusses, beams, roof framing details, etc. Specific details such as fireplaces, stairways, decks, etc. Details are drawn at 1/2" = 1' scale, and appear as needed throughout the prints.
  • Section: Shows a cross-section of the home. Shows support members, exterior and interior materials, insulation, and foundation.
  • Electrical Plan: A schematic layout of all lighting, switches and electrical outlets.
» See important information before purchasing.
Questions? Call 1-866-445-9085

Plan Set

PDF Print Set:
$871.25
A non-modifiable, print only PDF file
5 Copy and PDF Set:
$1062.50
5 printed plan sets mailed to you plus PDF plan sets are best for fast electronic delivery and inexpensive local printing.
PDF Master Set:
$1785.00
An unlocked, modifiable PDF file
CAD Set:
$1955.00
For use by design professionals to make substantial changes to your house plan and inexpensive local printing.
Master Builder Package:
$2146.25
Includes CAD Set, PDF Masters and Unlimited Build License
Study Set:
$701.25
One electronic set for bidding purposes only. Not a legal building set for construction.

Foundation

Crawlspace:
$0.00
Ideal for semi-sloped or level lot, home can be built off of grade, typically 18” - 48”.
Slab:
$297.50
Ideal for level lot, single layer concrete poured directly on grade.
Basement:
$391.00
Ideal for level lot, lower level of home partially or fully underground.

Framing

Wood 2x6:
$0.00
Wood 2x6 Exterior Walls
Wood 2x4:
$297.50
Wood 2x4 Exterior Walls

Additional Options

Right-Reading Reverse:
$255.00
Choose this option to reverse your plans and to have the text and dimensions readable.
Additional Construction Sets:
$46.75
Additional hard copies of the plan (can be ordered at the time of purchase and within 90 days of the purchase date).
Additional Use License:
$701.25
Allows you to build one more home for each additional license purchased.
Audio Video Design:
$140.25
Receive an overlay sheet with suggested placement of audio and video components.
Comprehensive Material List:
$250.75
A complete list of building supplies needed to construct the infrastructure of your new house, plus an overlay of materials shown directly on your PDF (foundation to rooftop with interior and exterior materials), and a detailed, itemized door and window schedule showing all sizes and types. Please allow 5-7 Business Days for completion. Note, the Comprehensive list is only available with a PDF purchase. The Comprehensive list can be ordered no matter what additional plan options you have selected.
Construction Guide:
$33.15
Educate yourself about basic building ideas with these four detailed diagrams that discuss electrical, plumbing, mechanical, and structural topics.
Lighting Design:
$140.25
Receive an overlay sheet with suggested placement of lighting fixtures.

* Alternate Foundations may take time to prepare.

** Options with a fee may take time to prepare. Please call to confirm.

Unless you buy an “unlimited” plan set or a multi-use license you may only build one home from a set of plans. Please call to verify if you intend to build more than once. Plan licenses are non-transferable and cannot be resold.