Don't lose your saved plans!  Create an account to access your saves whenever you want. See our Terms & Conditions and Privacy Policy.

PLAN 932-1368

Photographs may show modified designs.

Save
  • Jump to:
  • All (8)
  • Floor plans (2)
Questions? Get Personalized Help
Home  >  Style  >  Contemporary

Key Specs


Plan Sq Ft

1914
sq ft

Plan Bedrooms

3
Beds

Plan Bathrooms

2.5
Baths

Plan Floors

2
Floors

Plan Garages

3
Garages

Select Plan Set Options

What's included?
$200.00
Additional Construction Sets$44.00/each

Additional hard copies of the plan (can be ordered at the time of purchase and within 90 days of the purchase date).

$165.00
$39.00
$295.00
Subtotal
$1563.00
Best Price Guaranteed*
Also order by phone: 1-866-445-9085
 
Questions about building your home?
Get Personalized Help
We do our best to get back to you within 24 - 48 business hours.
Need an answer faster? Call now...
Phone: 1-866-445-9085
Hours:
Ready for Your Call 7 Days a Week
Every Day 7 am - 8:30 pm Eastern

See our Terms & Conditions and Privacy Policy.

 
Wow!
Cost to Build Reports
Only $1.99 Right Now
Use Code CTB2026
Our Cost to Build Report gives you a personalized estimate for building your home, based on your location, plan, and materials.
Get Cost To Build Report
Limit one per order.

Residential Construction Guide

Learn Building Basics

This downloadable, 26-page guide is full of diagrams and details about plumbing, electrical, and more.

PLAN 932-1368

This plan can be customized

Tell us about your desired changes so we can prepare an estimate for the design service. Click the button to submit your request for pricing, or call 1-866-445-9085 for assistance.

Modify This Plan

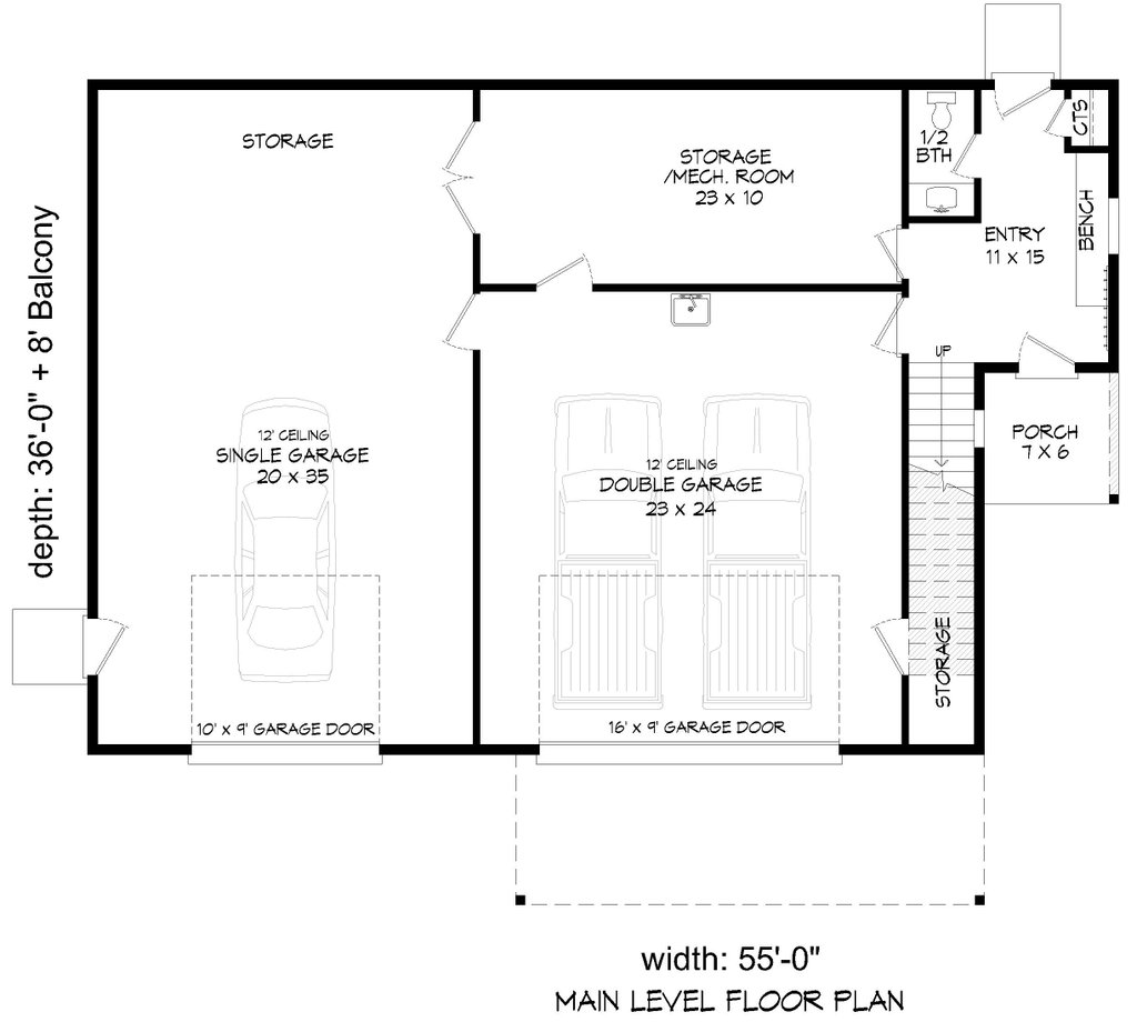
Plan Description


This contemporary design floor plan is 1914 sq ft and has 3 bedrooms and 2.5 bathrooms.

Full Specs & Features


Dimension

Depth : 44'

Height : 30' 5"

Width : 55'

Area

Decks : 200 sq/ft

Garage : 1642 sq/ft

Main Floor : 192 sq/ft

Porch : 43 sq/ft

Upper Floor : 1722 sq/ft

* Total Square Footage typically only includes conditioned space and does not include garages, porches, bonus rooms, or decks.

Ceiling

Ceiling Details : Upstairs ceiling slopes from 7'-0" to 14'-6" height.

Main Ceiling : 12'

Upper Ceiling Ft : 7'

Roof

Primary Pitch : 2/12

Roof Framing : Conventional Framing

Roof Load : 15

Roof Type : Gable

Exterior Wall Framing

Exterior Wall Finish : siding

Framing : 2x6

Bedroom Features

Split Bedrooms

Upstairs Bedrooms

Upstairs Master Bedrooms

Walk In Closet

Kitchen Features

Eating Bar

Kitchen Island

Walk In Pantry Cabinet Pantry

Additional Room Features

Family Room Keeping Room

Storage Area

Upstairs Laundry

Workshop

Garage Features

Front Entry Garage

Garage Under

Split Garage

Outdoor Spaces

Balcony

Covered Front Porch

What's Included In This Plan Set


Plans are typically drawn to ¼” scale and include:
  • Foundation Plan(s): This page shows all necessary notations and dimensions including support columns, walls, and excavated/unexcavated areas.
  • Floor Plan(s): Detailed plans for each level showing room dimensions, wall partitions, windows and doors sizes, joist directions and beam locations.
  • Exterior Elevations: Views of the home from all four sides showing exterior materials, roof slope, ridge heights, siding and trim notes.
  • Overhead Roof Plan(s): A view of the home from above showing roof pitch, peaks, valleys, and other details.
  • Cross Section(s): A slice of the home from roof to foundation, showing relationships between floors, roof, and foundation.
  • Construction Notes / Detail(s): Shows basic parts and assemblies recommended for the home so the builder can see how things come together.
» See important information before purchasing.
Questions? Call 1-866-445-9085

Plan Set

PDF Set:
$1563.00
PDF plan sets are best for fast electronic delivery and inexpensive local printing.
5 Copy Set:
$1769.00
5 printed plan sets mailed to you.
5 Copy and PDF Set:
$1835.00
5 printed plan sets mailed to you plus PDF plan sets are best for fast electronic delivery and inexpensive local printing.
CAD and PDF Set:
$2250.00
For use by design professionals to make substantial changes to your house plan and inexpensive local printing plus PDF plan sets are best for fast electronic delivery and inexpensive local printing.
Study Set:
$1175.00
One electronic set for bidding purposes only. Not a legal building set for construction.

Foundation

Slab:
$0.00
Ideal for level lot, single layer concrete poured directly on grade.
Crawlspace:
$200.00
Ideal for semi-sloped or level lot, home can be built off of grade, typically 18” - 48”.
Basement:
$450.00
Ideal for level lot, lower level of home partially or fully underground.

Framing

Wood 2x6:
$0.00
Wood 2x6 Exterior Walls
Wood 2x4:
$200.00
Wood 2x4 Exterior Walls

Additional Options

Right-Reading Reverse:
$200.00
Choose this option to reverse your plans and to have the text and dimensions readable.
Additional Construction Sets:
$44.00
Additional hard copies of the plan (can be ordered at the time of purchase and within 90 days of the purchase date).
Audio Video Design:
$165.00
Receive an overlay sheet with suggested placement of audio and video components.
Construction Guide:
$39.00
Educate yourself about basic building ideas with these four detailed diagrams that discuss electrical, plumbing, mechanical, and structural topics.
Material List:
$295.00
A spreadsheet of building supplies needed to construct the infrastructure of your new house. Please note materials lists will not reflect add-ons such as alternate foundation and framing options.

* Alternate Foundations may take time to prepare.

** Options with a fee may take time to prepare. Please call to confirm.

Unless you buy an “unlimited” plan set or a multi-use license you may only build one home from a set of plans. Please call to verify if you intend to build more than once. Plan licenses are non-transferable and cannot be resold.