Don't lose your saved plans!  Create an account to access your saves whenever you want. See our Terms & Conditions and Privacy Policy.
ON SALE!

PLAN 895-162

Photographs may show modified designs.

Save
  • Jump to:
  • All (7)
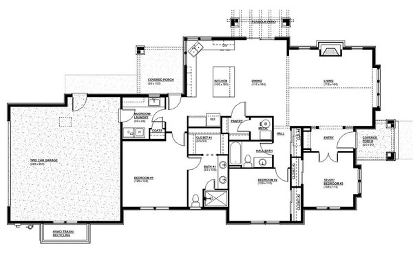
  • Floor plans (1)
Questions? Get Personalized Help

Key Specs


Plan Sq Ft

1728
sq ft

Plan Bedrooms

3
Beds

Plan Bathrooms

2
Baths

Plan Floors

1
Floors

Plan Garages

2
Garages

Select Plan Set Options

What's included?
$382.50
$140.25
$250.75
$33.15
$140.25
Mirror Reversed Sets$127.50

Printed sets showing plan in reverse, text and dimensions will be backwards.

Subtotal
NOW $977.50
You save $172.50 (15% savings)
Sale ends soon!
Best Price Guaranteed*
Also order by phone: 1-866-445-9085
 
Questions about building your home?
Get Personalized Help
We do our best to get back to you within 24 - 48 business hours.
Need an answer faster? Call now...
Phone: 1-866-445-9085
Hours:
Ready for Your Call 7 Days a Week
Every Day 7 am - 8:30 pm Eastern

See our Terms & Conditions and Privacy Policy.

 
Wow!
Cost to Build Reports
Only $1.99 Right Now
Use Code CTBFALL
Our Cost to Build Report gives you a personalized estimate for building your home, based on your location, plan, and materials.
Get Cost To Build Report
Limit one per order.

Residential Construction Guide

Learn Building Basics

This downloadable, 26-page guide is full of diagrams and details about plumbing, electrical, and more.

PLAN 895-162

This plan can be customized

Tell us about your desired changes so we can prepare an estimate for the design service. Click the button to submit your request for pricing, or call 1-866-445-9085 for assistance.

Modify This Plan

Plan Description


Single family craftsman house with 3 bedrooms, 2 bath and attached 2 car garage

Full Specs & Features


Dimension

Depth : 81'

Height : 19' 10"

Width : 43'

Area

Garage : 613 sq/ft

Main Floor : 1728 sq/ft

Patios : 52 sq/ft

Porch : 221 sq/ft

* Total Square Footage typically only includes conditioned space and does not include garages, porches, bonus rooms, or decks.

Ceiling

Ceiling Details : Flat and vaulted in living.

Garage Ceiling : 9' 7"

Main Ceiling : 9'

Roof

Primary Pitch : 6/12

Roof Framing : truss

Roof Load : 25

Roof Type : composition

Secondary Pitch : 6/12

Exterior Wall Framing

Exterior Wall Finish : lap siding, board and batt, brick

Framing : 2x6

Insulation : Batt

Bedroom Features

Main Floor Bedrooms

Main Floor Master Bedroom

Walk In Closet

Kitchen Features

Breakfast Nook

Eating Bar

Kitchen Island

Walk In Pantry Cabinet Pantry

Additional Room Features

Main Floor Laundry

Mud Room

Garage Features

Rear Entry Garage

Rear Garage

Lot Characteristics

Suited For Corner Lot

Suited For Narrow Lot

Suited For View Lot

Outdoor Spaces

Covered Front Porch

Covered Rear Porch

More

Empty Nester

Suited For Vacation Home

What's Included In This Plan Set


The typical plan set will include:Plans are typically drawn to ¼” scale and include:
  • Cover Sheet: Drawing index, designer contact info, plan name/number, legal disclaimers.
  • Foundation Plan(s): This page shows all necessary notations and dimensions including footings, support columns, walls, and excavated/unexcavated areas.
  • Floor Plan(s): Detailed plans for each level showing room dimensions, wall partitions, windows and doors, fixture locations, and ceiling treatments.
  • Exterior Elevations: Views of the home from all four sides showing exterior materials, roof slope, ridge heights, siding and trim notes.
  • Overhead Roof Plan(s): A view of the home from above showing roof pitch, peaks, valleys, and other details.
  • Cross Section(s): A slice of the home from roof to foundation, showing relationships between floors, roof, and foundation.
  • Building Section(s): Shows the relationship between different levels, wall heights, and the overall building volume. May include details like foundation, framing, insulation, and finishes.
  • Electrical Plan(s): Shows the location of lights, receptacles, switches, etc. Some plans that do not include an electrical plan may have it available for an additional fee.
  • Construction Notes and Detail(s): Shows basic parts and assemblies recommended for the home so the builder can see how things come together.
  • Framing Detail(s): If included, the framing layout is intended to be a suggested layout only. Design loads and weather conditions vary by region. As a result the size, spacing, and layout of all structural elements in this home design may need approval by a structural engineer or code official based on your specific site location.
  • Wall Section(s): Detailed drawings showing wall connections, from foundation to the roof, wall connections to foundation, window installation, siding installation, stair details, and more.
  • Energy Guidelines: Specifications or suggestions for how to meet or exceed certain energy standards.
» See important information before purchasing.
Questions? Call 1-866-445-9085

Plan Set

5 Copy Set:
$977.50
5 printed plan sets mailed to you.
8 Copy Set:
$1105.00
8 printed plan sets mailed to you.
Reproducible Set:
$1232.50
For inexpensive local printing / making minor adjustments by hand. 1 printed set, typically on Bond paper.
PDF Set:
$1360.00
PDF plan sets are best for fast electronic delivery and inexpensive local printing.
CAD Set:
$2295.00
For use by design professionals to make substantial changes to your house plan and inexpensive local printing.
Single Set:
$807.50
One printed set for bidding purposes only. Not a legal building set for construction.
Study Set:
$807.50
One electronic set for bidding purposes only. Not a legal building set for construction.

Foundation

Crawlspace:
$0.00
Ideal for semi-sloped or level lot, home can be built off of grade, typically 18” - 48”.

Framing

Wood 2x6:
$0.00
Wood 2x6 Exterior Walls

Additional Options

Right-Reading Reverse:
$382.50
Choose this option to reverse your plans and to have the text and dimensions readable.
Audio Video Design:
$140.25
Receive an overlay sheet with suggested placement of audio and video components.
Comprehensive Material List:
$250.75
A complete list of building supplies needed to construct the infrastructure of your new house, plus an overlay of materials shown directly on your PDF (foundation to rooftop with interior and exterior materials), and a detailed, itemized door and window schedule showing all sizes and types. Please allow 5-7 Business Days for completion. Note, the Comprehensive list is only available with a PDF purchase. The Comprehensive list can be ordered no matter what additional plan options you have selected.
Construction Guide:
$33.15
Educate yourself about basic building ideas with these four detailed diagrams that discuss electrical, plumbing, mechanical, and structural topics.
Lighting Design:
$140.25
Receive an overlay sheet with suggested placement of lighting fixtures.
Mirror Reversed Sets:
$127.50
A mirror-reversed set is a printed copy of your house, resulting in the same image you would see if you held the drawing up to a mirror. Everything, including the text, is backward in relation to the original design. These kinds of drawing are typically used to reorient an original plan more advantageously on a site, either because the homeowner prefers it that way or because of limitations of the site itself. Note: Mirror reverse sets are only available with a 5 copy or 8 copy set. With a Reproducible, PDF, or CAD set, you can print mirrored copies locally. In addition: 5 Copy set selected, should only allow 4 mirrored sets to be selected. 8 Copy set selected, should only allow 7 mirrored sets to be selected.

* Alternate Foundations may take time to prepare.

** Options with a fee may take time to prepare. Please call to confirm.

Unless you buy an “unlimited” plan set or a multi-use license you may only build one home from a set of plans. Please call to verify if you intend to build more than once. Plan licenses are non-transferable and cannot be resold.