- Jump to:
- All (5)
- Floor plans (2)
Key Specs
1677
sq ft
2
Beds
2
Baths
2
Floors
0
Garages
Phone: 1-866-445-9085
See our Terms & Conditions and Privacy Policy.
Use Code CTBFALL
Residential Construction Guide
Learn Building Basics
This downloadable, 26-page guide is full of diagrams and details about plumbing, electrical, and more.
PLAN 126-106
This plan can be customized
Tell us about your desired changes so we can prepare an estimate for the design service. Click the button to submit your request for pricing, or call 1-866-445-9085 for assistance.
Plan Description
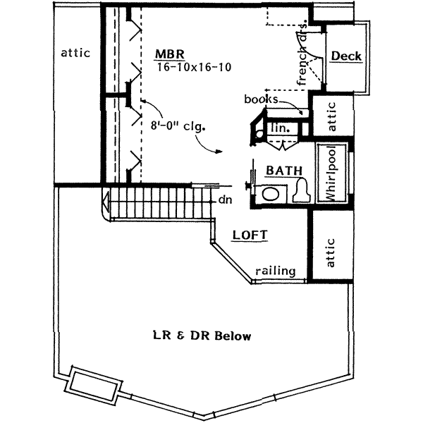
Floor Plans
Full Specs & Features
Dimension
Depth : 40'
Width : 28'
Area
Basement : 1064 sq/ft
Main Floor : 1064 sq/ft
Porch : 32 sq/ft
Upper Floor : 613 sq/ft
Ceiling
Main Ceiling : 8'
Upper Ceiling Ft : 8'
Roof
Primary Pitch : 12:12
Exterior Wall Framing
Framing : 2"x6"
Bedroom Features
Main Floor Bedrooms
Upstairs Master Bedrooms
Kitchen Features
Eating Bar
Additional Room Features
Loft
Outdoor Spaces
Balcony
More
Suited For Vacation Home
What's Included In This Plan Set
- Cover Sheet: Designer contact info, plan name/number, legal disclaimers.
- Foundation Plan(s): This page shows all necessary notations and dimensions including footings, support columns, walls, and excavated/unexcavated areas.
- Floor Plan(s): Detailed plans for each level showing room dimensions, wall partitions, windows and doors, fixture locations, and ceiling treatments.
- Exterior Elevations: Views of the home from all four sides showing exterior materials, roof slope, ridge heights, siding and trim notes.
- Overhead Roof Plan(s): A view of the home from above showing roof pitch, peaks, valleys, and other details.
- Cross Section(s): A slice of the home from roof to foundation, showing relationships between floors, roof, and foundation.
- Building Section(s): Shows the relationship between different levels, wall heights, and the overall building volume. May include details like foundation, framing, insulation, and finishes.
- Electrical Plan(s): Including lighting fixture placement
- Construction Notes and Detail(s): Shows basic parts and assemblies recommended for the home so the builder can see how things come together.
Plan Set
$1058.25
$1270.75
$1483.25
Foundation
$0.00
$335.75
Framing
$0.00
Additional Options
$170.00
$46.75
$140.25
$33.15
$140.25
$106.25
* Alternate Foundations may take time to prepare.
** Options with a fee may take time to prepare. Please call to confirm.
 
 
                 
                         
                         
                 
                 
                 
                 
                 
                 
                 
                 
                 
                