Don't lose your saved plans!  Create an account to access your saves whenever you want. See our Terms & Conditions and Privacy Policy.
ON SALE!

PLAN 21-614

Photographs may show modified designs.

Save
  • Jump to:
  • All (3)
  • Floor plans (1)
Questions? Get Personalized Help

Key Specs


Plan Sq Ft

2649
sq ft

Plan Bedrooms

3
Beds

Plan Bathrooms

2
Baths

Plan Floors

1
Floors

Plan Garages

2
Garages

Select Plan Set Options

What's included?
$127.50
Additional Construction Sets$51.00/each

Additional hard copies of the plan (can be ordered at the time of purchase and within 90 days of the purchase date).

$212.50
$140.25
$140.25
$127.50
Mirror Reversed Sets$42.50

Printed sets showing plan in reverse, text and dimensions will be backwards.

$850.00
Subtotal
NOW $1105.00
You save $195.00 (15% savings)
Sale ends soon!
Best Price Guaranteed*
Also order by phone: 1-866-445-9085
 
Questions about building your home?
Get Personalized Help
We do our best to get back to you within 24 - 48 business hours.
Need an answer faster? Call now...
Phone: 1-866-445-9085
Hours:
Ready for Your Call 7 Days a Week
Every Day 7 am - 8:30 pm Eastern

See our Terms & Conditions and Privacy Policy.

 
Wow!
Cost to Build Reports
Only $1.99 Right Now
Use Code CTB2026
Our Cost to Build Report gives you a personalized estimate for building your home, based on your location, plan, and materials.
Get Cost To Build Report
Limit one per order.

Residential Construction Guide

Learn Building Basics

This downloadable, 26-page guide is full of diagrams and details about plumbing, electrical, and more.

PLAN 21-614

This plan can be customized

Tell us about your desired changes so we can prepare an estimate for the design service. Click the button to submit your request for pricing, or call 1-866-445-9085 for assistance.

Modify This Plan

Plan Description


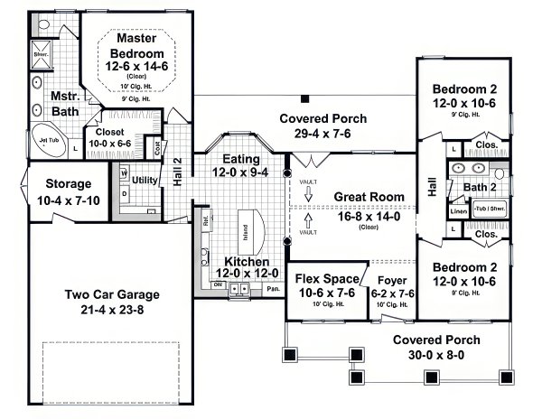
This thoughtfully designed home plan blends classic curb appeal with a highly livable, family-friendly layout. A welcoming covered front porch leads into a bright foyer and flexible front room—ideal for a home office, study, or hobby space. The heart of the home features an open great room with vaulted ceilings that flows seamlessly into the kitchen and casual eating area, creating an inviting space for everyday living and entertaining. The kitchen offers a generous island, ample cabinetry, and direct access to a rear covered porch for easy indoor-outdoor living. The private primary suite is tucked away for comfort and includes a spacious bedroom, well-appointed bath, and walk-in closet. Two secondary bedrooms share a conveniently located hall bath. A side-entry two-car garage, large utility room, and abundant storage complete the plan. With its efficient layout, inviting porches, and timeless exterior, this home is perfectly suited for modern Southern living.

Full Specs & Features


Dimension

Depth : 52' 2"

Height : 20' 6"

Width : 64'

Area

Garage : 612 sq/ft

Main Floor : 2649 sq/ft

Porch : 418 sq/ft

* Total Square Footage typically only includes conditioned space and does not include garages, porches, bonus rooms, or decks.

Ceiling

Main Ceiling : 9'

Roof

Primary Pitch : 8 in 12

Roof Framing : 2x4

Roof Load : Live Load: 30 # / p.s.f. Dead Load: 10 # / p.s.f. Total Load: 40 # / p.s.f.

Roof Type : Stick

Secondary Pitch : 12 in 12

Exterior Wall Framing

Exterior Wall Finish : Stone / Siding

Framing : 2x4

Insulation : Exterior Walls: 15 Ceilings/Roof: 38 Floors < one story on Crawlspace: 19 Floor areas between first and second floors (over garages, etc.): R-19

Bedroom Features

Main Floor Master Bedroom

Split Bedrooms

Walk In Closet

Kitchen Features

Breakfast Nook

Eating Bar

Kitchen Island

Walk In Pantry Cabinet Pantry

Additional Room Features

Den Office Study Computer

Great Room Living Room

Hobby Rec Room Game Room

Main Floor Laundry

Media Room

Play Flex Room

Storage Area

Garage Features

Front Entry Garage

Oversized Garage

Outdoor Spaces

Covered Front Porch

Covered Rear Porch

More

Economical To Build

Empty Nester

Energy Efficient Features

Energy Efficient Design

What's Included In This Plan Set


Plans are typically drawn to ¼” scale or larger and include:
  • Cover Sheet: Color rendering or black and white image of the exterior
  • Foundation Plan(s): Drawn to 1/4" scale, this page shows all necessary notations and dimensions including support columns, walls and excavated and unexcavated areas.
  • Floor Plan(s): Detailed plans, drawn to 1/4" scale for each level showing room dimensions, wall partitions, windows, etc. as well as the location of electrical outlets and switches.
  • Exterior Elevations: A blueprint picture of all four sides showing exterior materials and measurements.
  • Interior Elevations: Where applicable, each house plan set includes relevant interior elevations, including cabinets, cabinet details, columns and walls with unique conditions.
  • Overhead Roof Plan(s): Overhead view of roof.
  • Cross Section(s): A vertical cutaway view of the house from roof to foundation showing details of framing, construction, flooring and roofing.
  • Electrical Plan(s): Lighting, outlets, switches, detectors, etc.
  • Kitchen Cabinet Elevation(s): Scaled drawings of interior cabinets.
  • Construction Notes and Detail(s): Shows basic parts and assemblies recommended for the home so the builder can see how things come together.
  • Framing Detail(s): Ceiling joist size and spacing and layouts. If included, the framing layout is intended to be a suggested layout only. Design loads and weather conditions vary by region. As a result the size, spacing, and layout of all structural elements in this home design may need approval by a structural engineer or code official based on your specific site location.
  • Wall Section(s): Exterior wall and roof sections and specialty details.
» See important information before purchasing.
Questions? Call 1-866-445-9085

Plan Set

PDF Set:
$1105.00
PDF plan sets are best for fast electronic delivery and inexpensive local printing.
5 Copy Set:
$1190.00
5 printed plan sets mailed to you.
5 Copy and PDF Set:
$1360.00
5 printed plan sets mailed to you plus PDF plan sets are best for fast electronic delivery and inexpensive local printing.
CAD and PDF Set:
$1657.50
For use by design professionals to make substantial changes to your house plan and inexpensive local printing plus PDF plan sets are best for fast electronic delivery and inexpensive local printing.
CAD Set:
$1657.50
For use by design professionals to make substantial changes to your house plan and inexpensive local printing.
CAD Single Build:
$1657.50
For use by design professionals to make substantial changes to your house plan and inexpensive local printing.
PDF Unlimited Build:
$1955.00
PDF plan sets are best for fast electronic delivery and inexpensive local printing.
Five Copy and PDF Set Unlimited Build:
$2210.00
5 printed plan sets mailed to you plus PDF plan sets are best for fast electronic delivery and inexpensive local printing.
CAD and PDF Set Unlimited Build:
$2507.50
For use by design professionals to make substantial changes to your house plan and inexpensive local printing plus PDF plan sets are best for fast electronic delivery and inexpensive local printing.
CAD Unlimited Build:
$2507.50
For use by design professionals to make substantial changes to your house plan and inexpensive local printing.
Single Set:
$977.50
One printed set for bidding purposes only. Not a legal building set for construction.

Foundation

Crawlspace:
$0.00
Ideal for semi-sloped or level lot, home can be built off of grade, typically 18” - 48”.
Slab:
$0.00
Ideal for level lot, single layer concrete poured directly on grade.

Framing

Wood 2x4:
$0.00
Wood 2x4 Exterior Walls

Additional Options

Right-Reading Reverse:
$127.50
Choose this option to reverse your plans and to have the text and dimensions readable.
Additional Construction Sets:
$51.00
Additional hard copies of the plan (can be ordered at the time of purchase and within 90 days of the purchase date).
Additional Use License:
$212.50
Allows you to build one more home for each additional license purchased.
Audio Video Design:
$140.25
Receive an overlay sheet with suggested placement of audio and video components.
Lighting Design:
$140.25
Receive an overlay sheet with suggested placement of lighting fixtures.
Material List:
$127.50
A spreadsheet of building supplies needed to construct the infrastructure of your new house. Please note materials lists will not reflect add-ons such as alternate foundation and framing options.
Mirror Reversed Sets:
$42.50
A mirror-reversed set is a printed copy of your house, resulting in the same image you would see if you held the drawing up to a mirror. Everything, including the text, is backward in relation to the original design. These kinds of drawing are typically used to reorient an original plan more advantageously on a site, either because the homeowner prefers it that way or because of limitations of the site itself. Note: Mirror reverse sets are only available with a 5 copy or 8 copy set. With a Reproducible, PDF, or CAD set, you can print mirrored copies locally. In addition: 5 Copy set selected, should only allow 4 mirrored sets to be selected. 8 Copy set selected, should only allow 7 mirrored sets to be selected.
Unlimited Use License:
$850.00
Allows you to build this home as many times as you want.

* Alternate Foundations may take time to prepare.

** Options with a fee may take time to prepare. Please call to confirm.

Unless you buy an “unlimited” plan set or a multi-use license you may only build one home from a set of plans. Please call to verify if you intend to build more than once. Plan licenses are non-transferable and cannot be resold.
$1.99 Build Cost Reports!