Don't lose your saved plans!  Create an account to access your saves whenever you want. See our Terms & Conditions and Privacy Policy.
ON SALE!

PLAN 472-11

Photographs may show modified designs.

Save
  • Jump to:
  • All (6)
  • Floor plans (1)
Questions? Get Personalized Help

Key Specs


Plan Sq Ft

1588
sq ft

Plan Bedrooms

2
Beds

Plan Bathrooms

2
Baths

Plan Floors

1
Floors

Plan Garages

0
Garages

Select Plan Set Options

What's included?
$170.00
$140.25
$250.75
$33.15
$140.25
Subtotal
NOW $1062.50
You save $187.50 (15% savings)
Sale ends soon!
Best Price Guaranteed*
Also order by phone: 1-866-445-9085
 
Questions about building your home?
Get Personalized Help
We do our best to get back to you within 24 - 48 business hours.
Need an answer faster? Call now...
Phone: 1-866-445-9085
Hours:
Ready for Your Call 7 Days a Week
Every Day 7 am - 8:30 pm Eastern

See our Terms & Conditions and Privacy Policy.

 
Wow!
Cost to Build Reports
Only $1.99 Right Now
Use Code CTB2026
Our Cost to Build Report gives you a personalized estimate for building your home, based on your location, plan, and materials.
Get Cost To Build Report
Limit one per order.

Residential Construction Guide

Learn Building Basics

This downloadable, 26-page guide is full of diagrams and details about plumbing, electrical, and more.

PLAN 472-11

This plan can be customized

Tell us about your desired changes so we can prepare an estimate for the design service. Click the button to submit your request for pricing, or call 1-866-445-9085 for assistance.

Modify This Plan

Plan Description


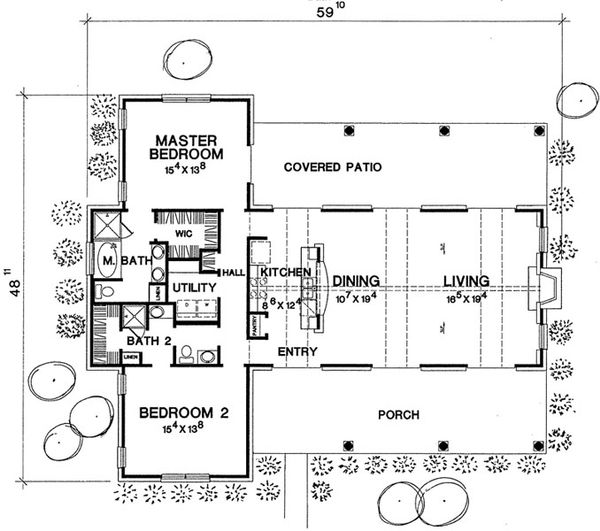
This design is simple yet very highly crafted with the Living, Dining and Kitchen all being enclosed in a sculpted cathedral space, with dormer windows and a fireplace, which anchors the space on one end and the Kitchen is centered on the other. The bedroom wing is separated into two suites which would be perfect for the empty nesters who want to have a comfortable guest space.

Full Specs & Features


Dimension

Depth : 49'

Width : 60'

Area

Main Floor : 1588 sq/ft

Patios : 387 sq/ft

Porch : 387 sq/ft

* Total Square Footage typically only includes conditioned space and does not include garages, porches, bonus rooms, or decks.

Ceiling

Main Ceiling : 10'

Roof

Primary Pitch : 12:12

Roof Framing : stick

Exterior Wall Framing

Framing : 2"x4"

Bedroom Features

Guest Suite

Main Floor Bedrooms

Main Floor Master Bedroom

Walk In Closet

Kitchen Features

Breakfast Nook

Eating Bar

Walk In Pantry Cabinet Pantry

Additional Room Features

Great Room Living Room

Main Floor Laundry

Master Sitting Area

Lot Characteristics

Suited For View Lot

Outdoor Spaces

Covered Front Porch

Covered Rear Porch

Structural Information Provided

Foundation Drawing

What's Included In This Plan Set



Note: Reproducible (PDF) and CAD plans are not available if building in Texas, Oklahoma, New Mexico, Louisiana, Tennessee, Arkansas, or Alabama. Architect must update and stamp all plans being sent to these states.
Plans are drawn to a typical architectural scale and include:
  • Foundation Plan(s): This page shows general notations and dimensions, including support columns, beam layouts and section cuts with typical details.
  • Floor Plan(s): Detailed plan drawn at Typical Architectural Scale, for each level. Plan shows room dimensions, wall partitions, windows, cabinets and plumbing fixtures. On a separate page(s) it will show the locations of the electrical outlets and switches.
  • Exterior Elevations: A 2D view of all four sides of the home. It shows and notates exterior materials, doors, windows and roof pitches.
  • Overhead Roof Plan(s): A view of the home from above showing roof pitch, peaks, valleys, and other details.
  • Cross Section(s): A vertical cutaway view of the home from roof to foundation, showing outline of framing, floor system and roofline.
  • Construction Notes / Detail(s): Shows basic parts and assemblies recommended for the home so the builder can see how things come together.
Note: framing and foundation plans may require engineering for local site, wind, and snow load conditions.
» See important information before purchasing.
Questions? Call 1-866-445-9085

Plan Set

PDF Set:
$1062.50
PDF plan sets are best for fast electronic delivery and inexpensive local printing.
CAD Set:
$1912.50
For use by design professionals to make substantial changes to your house plan and inexpensive local printing.

Foundation

Monolithic Slab:
$0.00
A single concrete pour with thicker portions that replace footers under load bearing walls and all perimeter edges.
Slab:
$0.00
Ideal for level lot, single layer concrete poured directly on grade.
Crawlspace:
$127.50
Ideal for semi-sloped or level lot, home can be built off of grade, typically 18” - 48”.
Basement:
$255.00
Ideal for level lot, lower level of home partially or fully underground.

Framing

Wood 2x4:
$0.00
Wood 2x4 Exterior Walls
Wood 2x6:
$212.50
Wood 2x6 Exterior Walls

Additional Options

Right-Reading Reverse:
$170.00
Choose this option to reverse your plans and to have the text and dimensions readable.
Audio Video Design:
$140.25
Receive an overlay sheet with suggested placement of audio and video components.
Comprehensive Material List:
$250.75
A complete list of building supplies needed to construct the infrastructure of your new house, plus an overlay of materials shown directly on your PDF (foundation to rooftop with interior and exterior materials), and a detailed, itemized door and window schedule showing all sizes and types. Please allow 5-7 Business Days for completion. Note, the Comprehensive list is only available with a PDF purchase. The Comprehensive list can be ordered no matter what additional plan options you have selected.
Construction Guide:
$33.15
Educate yourself about basic building ideas with these four detailed diagrams that discuss electrical, plumbing, mechanical, and structural topics.
Lighting Design:
$140.25
Receive an overlay sheet with suggested placement of lighting fixtures.

* Alternate Foundations may take time to prepare.

** Options with a fee may take time to prepare. Please call to confirm.

Unless you buy an “unlimited” plan set or a multi-use license you may only build one home from a set of plans. Please call to verify if you intend to build more than once. Plan licenses are non-transferable and cannot be resold.