- Jump to:
- All (20)
- Floor plans (2)
Key Specs
1537
sq ft
2
Beds
2.5
Baths
2
Floors
2
Garages
Phone: 1-866-445-9085
See our Terms & Conditions and Privacy Policy.
Use Code CTBFALL
Residential Construction Guide
Learn Building Basics
This downloadable, 26-page guide is full of diagrams and details about plumbing, electrical, and more.
PLAN 1094-15
This plan can be customized
Tell us about your desired changes so we can prepare an estimate for the design service. Click the button to submit your request for pricing, or call 1-866-445-9085 for assistance.
Plan Description
Floor Plans
Full Specs & Features
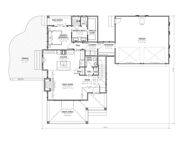
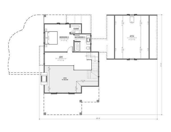
Dimension
Depth : 51' 6"
Height : 27' 8"
Width : 60' 8"
Area
Garage : 655 sq/ft
Main Floor : 1019 sq/ft
Porch : 293 sq/ft
Upper Floor : 518 sq/ft
Ceiling
Ceiling Details : Vaulted Great Room ceiling
Garage Ceiling : 9' 6"
Main Ceiling : 9' 1"
Upper Ceiling Ft : 8' 1"
Roof
Primary Pitch : 12:12
Roof Framing : Stick
Secondary Pitch : 4:12
Exterior Wall Framing
Exterior Wall Finish : Various
Framing : 2X4
Insulation : Per local codes
Bedroom Features
Main Floor Master Bedroom
Upstairs Bedrooms
Walk In Closet
Kitchen Features
Eating Bar
Kitchen Island
Walk In Pantry Cabinet Pantry
Additional Room Features
Great Room Living Room
Loft
Main Floor Laundry
Mud Room
Garage Features
Front Entry Garage
Outdoor Spaces
Covered Front Porch
Covered Rear Porch
More
Additional Half Bath
Suited For Vacation Home
What's Included In This Plan Set
All plans are drawn at ¼” scale or larger and include :
- Foundation Plan: This page shows all necessary notations and dimensions including support columns, walls, and excavated/unexcavated areas.
- Exterior Elevations: Views of the home from all four sides showing exterior materials and measurements.
- Floor Plan(s): Detailed plans for each level showing room dimensions, wall partitions, windows and doors, etc.
- Cross Section: A slice of the home from roof to foundation, showing important details like stairs and wall construction.
- Overhead Roof Plan(s): A view of the home from above showing roof pitch, peaks, valleys, and other details.
- Construction Notes and Details: Shows the builder how things come together, like walls, the chimney, insulation, and more.
Plan Set
$1270.75
$1950.75
Foundation
$0.00
Framing
$0.00
Additional Options
$212.50
$140.25
$33.15
$140.25
* Alternate Foundations may take time to prepare.
** Options with a fee may take time to prepare. Please call to confirm.
 
 
                 
                         
                         
                 
                 
                 
                 
                 
                 
                 
                 
                 
                 
                        