Don't lose your saved plans!  Create an account to access your saves whenever you want. See our Terms & Conditions and Privacy Policy.
ON SALE!

PLAN 47-721

Photographs may show modified designs.

Save
  • Jump to:
  • All (2)
  • Floor plans (1)
Questions? Get Personalized Help

Key Specs


Plan Sq Ft

1525
sq ft

Plan Bedrooms

3
Beds

Plan Bathrooms

2
Baths

Plan Floors

1
Floors

Plan Garages

0
Garages

Select Plan Set Options

What's included?
$165.75
Additional Construction Sets$51.00/each

Additional hard copies of the plan (can be ordered at the time of purchase and within 90 days of the purchase date).

$420.75
$127.50
$250.75
$33.15
$127.50
$72.25
Mirror Reversed Sets$0.00

Printed sets showing plan in reverse, text and dimensions will be backwards.

$845.75
Subtotal
NOW $897.60
You save $158.40 (15% savings)
Sale ends soon!
Best Price Guaranteed*
Also order by phone: 1-866-445-9085
 
Questions about building your home?
Get Personalized Help
We do our best to get back to you within 24 - 48 business hours.
Need an answer faster? Call now...
Phone: 1-866-445-9085
Hours:
Ready for Your Call 7 Days a Week
Every Day 7 am - 8:30 pm Eastern

See our Terms & Conditions and Privacy Policy.

 
Wow!
Cost to Build Reports
Only $1.99 Right Now
Use Code CTB2026
Our Cost to Build Report gives you a personalized estimate for building your home, based on your location, plan, and materials.
Get Cost To Build Report
Limit one per order.

Residential Construction Guide

Learn Building Basics

This downloadable, 26-page guide is full of diagrams and details about plumbing, electrical, and more.

PLAN 47-721

This plan can be customized

Tell us about your desired changes so we can prepare an estimate for the design service. Click the button to submit your request for pricing, or call 1-866-445-9085 for assistance.

Modify This Plan

Plan Description


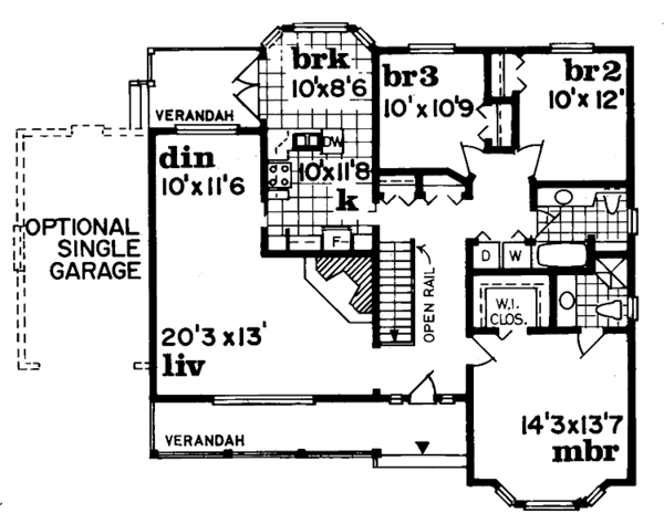
This charming country home is sized right for economy, but leaves out nothing in the way of livability. A bay window, front and rear verandas, and a sweeping room all enrich its heritage design. The front veranda opens to the center hall, which leads to the large living and dining areas. A corner fireplace in the living room warms the space in cold winter months. The kitchen and bayed breakfast nook sit to the rear and open to another veranda through double doors. Two family bedrooms are at the back of the plan and share a full hall bath. The master bedroom has a bay window, walk-in closet, and private bath. Plans include a single-car option, so you can add on if you choose.


Full Specs & Features


Dimension

Depth : 44'

Height : 22'

Width : 44' 6"

Area

First Floor: 1525 sq/ft height 8'

* Total Square Footage typically only includes conditioned space and does not include garages, porches, bonus rooms, or decks.

Roof

Primary Pitch : 8:12

Roof Framing : Combination Truss/Conventional

Exterior Wall Framing

Exterior Wall Finish : Siding

Framing : Wood - 2x6

Bedroom Features

Fireplace

Formal Dining Room

Formal Living Room / Parlor

Outdoor Spaces

Covered Front Porch

Rooms

3rd BR Closet:

8 sq/ft width 4' x depth 2'

Basement Foundation:

1958 sq/ft width 44' x depth 44' 6"

Bedroom 2:

120 sq/ft width 12' x depth 10'

Bedroom 2 Closet:

8 sq/ft width 4' x depth 2'

Bedroom 3:

107 sq/ft width 10' 9" x depth 10'

Bedroom 3 Closet:

8 sq/ft width 4' x depth 2'

Breakfast Room:

85 sq/ft width 8' 6" x depth 10'

Dining Room:

115 sq/ft width 11' 6" x depth 10'

Foyer:

40 sq/ft width 5' x depth 8' 2"

Hall Bathroom:

65 sq/ft width 7' 10" x depth 8' 4"

Hall Closet:

8 sq/ft width 2' x depth 4'

Kitchen:

116 sq/ft width 11' 8" x depth 10'

Living Room:

263 sq/ft width 13' x depth 20' 3"

Master Bathroom:

32 sq/ft width 5' x depth 6' 5"

Master Bedroom:

193 sq/ft width 13' 7" x depth 14' 3"

Master Closet:

37 sq/ft width 5' x depth 7' 5"

Porch - Front:

145 sq/ft width 5' x depth 29' 2"

What's Included In This Plan Set


  • Foundation Plan(s): This page shows all necessary notations and dimensions including footings, support columns, walls, and excavated/unexcavated areas.
  • Floor Plan(s): Detailed plans for each level showing room dimensions, wall partitions, windows and doors, fixture locations, and ceiling treatments.
  • Exterior Elevations: Views of the home from all four sides showing exterior materials, roof slope, ridge heights, siding and trim notes.
  • Overhead Roof Plan(s): A view of the home from above showing roof pitch, peaks, valleys, and other details.
  • Cross Section(s): A slice of the home from roof to foundation, showing relationships between floors, roof, and foundation.
  • Construction Notes and Detail(s): Shows basic parts and assemblies recommended for the home so the builder can see how things come together.
» See important information before purchasing.
Questions? Call 1-866-445-9085

Plan Set

PDF Set:
$897.60
PDF plan sets are best for fast electronic delivery and inexpensive local printing.
5 Copy Set:
$1009.80
5 printed plan sets mailed to you.
8 Copy Set:
$1122.00
8 printed plan sets mailed to you.
Reproducible Set:
$1122.00
For inexpensive local printing / making minor adjustments by hand. 1 printed set, typically on Bond paper.
CAD Set:
$1795.20
For use by design professionals to make substantial changes to your house plan and inexpensive local printing.

Foundation

Basement:
$0.00
Ideal for level lot, lower level of home partially or fully underground.
Crawlspace:
$233.75
Ideal for semi-sloped or level lot, home can be built off of grade, typically 18” - 48”.
Daylight Basement:
$233.75
Ideal for sloping lot, lower level of home partially underground.
Slab:
$233.75
Ideal for level lot, single layer concrete poured directly on grade.

Framing

Wood 2x6:
$0.00
Wood 2x6 Exterior Walls

Additional Options

Right-Reading Reverse:
$165.75
Choose this option to reverse your plans and to have the text and dimensions readable.
Additional Construction Sets:
$51.00
Additional hard copies of the plan (can be ordered at the time of purchase and within 90 days of the purchase date).
Additional Use License:
$420.75
Allows you to build one more home for each additional license purchased.
Audio Video Design:
$127.50
Receive an overlay sheet with suggested placement of audio and video components.
Comprehensive Material List:
$250.75
A complete list of building supplies needed to construct the infrastructure of your new house, plus an overlay of materials shown directly on your PDF (foundation to rooftop with interior and exterior materials), and a detailed, itemized door and window schedule showing all sizes and types. Please allow 5-7 Business Days for completion. Note, the Comprehensive list is only available with a PDF purchase. The Comprehensive list can be ordered no matter what additional plan options you have selected.
Construction Guide:
$33.15
Educate yourself about basic building ideas with these four detailed diagrams that discuss electrical, plumbing, mechanical, and structural topics.
Lighting Design:
$127.50
Receive an overlay sheet with suggested placement of lighting fixtures.
Material List:
$72.25
A spreadsheet of building supplies needed to construct the infrastructure of your new house. Please note materials lists will not reflect add-ons such as alternate foundation and framing options.
Mirror Reversed Sets:
$0.00
A mirror-reversed set is a printed copy of your house, resulting in the same image you would see if you held the drawing up to a mirror. Everything, including the text, is backward in relation to the original design. These kinds of drawing are typically used to reorient an original plan more advantageously on a site, either because the homeowner prefers it that way or because of limitations of the site itself. Note: Mirror reverse sets are only available with a 5 copy or 8 copy set. With a Reproducible, PDF, or CAD set, you can print mirrored copies locally. In addition: 5 Copy set selected, should only allow 4 mirrored sets to be selected. 8 Copy set selected, should only allow 7 mirrored sets to be selected.
Unlimited Use License:
$845.75
Allows you to build this home as many times as you want.

* Alternate Foundations may take time to prepare.

** Options with a fee may take time to prepare. Please call to confirm.

Unless you buy an “unlimited” plan set or a multi-use license you may only build one home from a set of plans. Please call to verify if you intend to build more than once. Plan licenses are non-transferable and cannot be resold.
$1.99 Build Cost Reports!