Don't lose your saved plans!  Create an account to access your saves whenever you want. See our Terms & Conditions and Privacy Policy.

PLAN 51-1502

Photographs may show modified designs.

Save
  • Jump to:
  • All (8)
  • Floor plans (3)
Questions? Get Personalized Help

Key Specs


Plan Sq Ft

1319
sq ft

Plan Bedrooms

3
Beds

Plan Bathrooms

2
Baths

Plan Floors

1
Floors

Plan Garages

2
Garages

Select Plan Set Options

What's included?
$250.00
Additional Construction Sets$75.00/each

Additional hard copies of the plan (can be ordered at the time of purchase and within 90 days of the purchase date).

$165.00
$39.00
Subtotal
$2050.00
Best Price Guaranteed*
Also order by phone: 1-866-445-9085
 
Questions about building your home?
Get Personalized Help
We do our best to get back to you within 24 - 48 business hours.
Need an answer faster? Call now...
Phone: 1-866-445-9085
Hours:
Ready for Your Call 7 Days a Week
Every Day 7 am - 8:30 pm Eastern

See our Terms & Conditions and Privacy Policy.

 
Wow!
Cost to Build Reports
Only $1.99 Right Now
Use Code CTB2026
Our Cost to Build Report gives you a personalized estimate for building your home, based on your location, plan, and materials.
Get Cost To Build Report
Limit one per order.

Residential Construction Guide

Learn Building Basics

This downloadable, 26-page guide is full of diagrams and details about plumbing, electrical, and more.

PLAN 51-1502

This plan can be customized

Tell us about your desired changes so we can prepare an estimate for the design service. Click the button to submit your request for pricing, or call 1-866-445-9085 for assistance.

Modify This Plan

Plan Description


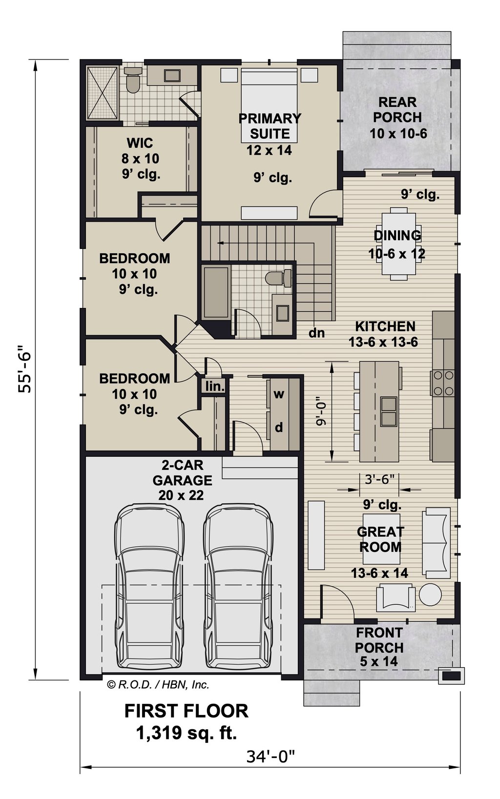
This Craftsman-style home beautifully combines classic appeal with modern living. The exterior exudes warmth with its inviting covered front and rear porches, perfect for enjoying the outdoors in comfort and style. Step inside, and you'll be greeted by an abundance of natural light, thanks to the numerous windows that grace the home, creating a bright and airy atmosphere throughout. The heart of the home is the spacious great room, which flows effortlessly into the stylish and functional kitchen. Here, you’ll find a space designed for both cooking and entertaining, where every detail is crafted for convenience and elegance. Whether you’re preparing a family meal or hosting guests, this area is the ideal setting. On the main level, the luxurious master suite offers a private retreat with all the amenities you desire, including a lavish bathroom and ample walk-in closet. Two additional bedrooms on this level provide flexibility for family, guests, or even a home office, all conveniently located to make life easier. Venture to the lower level, and you’ll find a cozy family room, perfect for relaxed gatherings or movie nights. This level also includes an additional bedroom, providing extra space for visitors or a growing family. The unfinished utility and storage space ensure that there’s plenty of room for all your belongings, keeping the home organized and clutter-free. With a dedicated laundry room and a spacious two-car garage, this Craftsman home is designed to meet the needs of modern living, while still maintaining the timeless appeal that makes it truly special.

Full Specs & Features


Dimension

Depth : 55' 6"

Width : 34'

Area

Garage : 463 sq/ft

Lower Floor : 684 sq/ft

Main Floor : 1319 sq/ft

* Total Square Footage typically only includes conditioned space and does not include garages, porches, bonus rooms, or decks.

Ceiling

Lower Ceiling : 8' 8"

Main Ceiling : 9'

Roof

Roof Framing : Truss

Exterior Wall Framing

Framing : 2x6

Bedroom Features

Lower Level Bedrooms

Main Floor Master Bedroom

Walk In Closet

Kitchen Features

Breakfast Nook

Kitchen Island

Walk In Pantry Cabinet Pantry

Additional Room Features

Great Room Living Room

Loft

Main Floor Laundry

Garage Features

Front Entry Garage

Lot Characteristics

Suited For Corner Lot

Suited For Narrow Lot

Suited For Sloping Lot

Outdoor Spaces

Covered Front Porch

Covered Rear Porch

More

Economical To Build

Energy Efficient Features

Energy Efficient Design

What's Included In This Plan Set


Plans are typically drawn to ¼” scale and include:
  • Foundation Plan(s): This page shows all necessary notations and dimensions including footings, support columns, walls, and excavated/unexcavated areas.
  • Floor Plan(s): Detailed plans, drawn to 1/4" scale for each level showing room dimensions, wall partitions, windows, etc.
  • Exterior Elevations: A blueprint picture of all four sides showing exterior materials and measurements. Drawn to 1/4" and 1/8" scale.
  • Overhead Roof Plan(s): A view of the home from above showing roof pitch, peaks, valleys, and other details.
  • Cross Section(s): A slice of the home from roof to foundation, showing relationships between floors, roof, and foundation.
  • Construction Notes / Detail(s): Shows basic parts and assemblies recommended for the home so the builder can see how things come together.
  • Other Note(s): This plan will not contain an electrical layout.
» See important information before purchasing.
Questions? Call 1-866-445-9085

Plan Set

PDF Set:
$2050.00
PDF plan sets are best for fast electronic delivery and inexpensive local printing.
5 Copy Set:
$2250.00
5 printed plan sets mailed to you.
5 Copy and PDF Set:
$2350.00
5 printed plan sets mailed to you plus PDF plan sets are best for fast electronic delivery and inexpensive local printing.
8 Copy Set:
$2350.00
8 printed plan sets mailed to you.
CAD Set:
$2700.00
For use by design professionals to make substantial changes to your house plan and inexpensive local printing.
Single Set:
$2050.00
One printed set for bidding purposes only. Not a legal building set for construction.

Foundation

Basement:
$0.00
Ideal for level lot, lower level of home partially or fully underground.
Crawlspace:
$400.00
Ideal for semi-sloped or level lot, home can be built off of grade, typically 18” - 48”.
Daylight Basement:
$400.00
Ideal for sloping lot, lower level of home partially underground.
Slab:
$400.00
Ideal for level lot, single layer concrete poured directly on grade.
Walk Out Basement:
$400.00
Ideal for a sloping lot, lower level with outdoor access.

Framing

Wood 2x6:
$0.00
Wood 2x6 Exterior Walls

Additional Options

Right-Reading Reverse:
$250.00
Choose this option to reverse your plans and to have the text and dimensions readable.
Additional Construction Sets:
$75.00
Additional hard copies of the plan (can be ordered at the time of purchase and within 90 days of the purchase date).
Audio Video Design:
$165.00
Receive an overlay sheet with suggested placement of audio and video components.
Construction Guide:
$39.00
Educate yourself about basic building ideas with these four detailed diagrams that discuss electrical, plumbing, mechanical, and structural topics.

* Alternate Foundations may take time to prepare.

** Options with a fee may take time to prepare. Please call to confirm.

Unless you buy an “unlimited” plan set or a multi-use license you may only build one home from a set of plans. Please call to verify if you intend to build more than once. Plan licenses are non-transferable and cannot be resold.