Don't lose your saved plans!  Create an account to access your saves whenever you want. See our Terms & Conditions and Privacy Policy.
ON SALE!

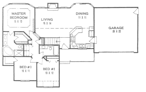
PLAN 58-127

Photographs may show modified designs.

Save
  • Jump to:
  • All (2)
  • Floor plans (1)
Questions? Get Personalized Help

Key Specs


Plan Sq Ft

1267
sq ft

Plan Bedrooms

3
Beds

Plan Bathrooms

2
Baths

Plan Floors

1
Floors

Plan Garages

2
Garages

Select Plan Set Options

What's included?
$127.50
Additional Construction Sets$63.75/each

Additional hard copies of the plan (can be ordered at the time of purchase and within 90 days of the purchase date).

$140.25
$250.75
$33.15
$140.25
Subtotal
NOW $760.75
You save $134.25 (15% savings)
Sale ends soon!
Best Price Guaranteed*
Also order by phone: 1-866-445-9085
 
Questions about building your home?
Get Personalized Help
We do our best to get back to you within 24 - 48 business hours.
Need an answer faster? Call now...
Phone: 1-866-445-9085
Hours:
Ready for Your Call 7 Days a Week
Every Day 7 am - 8:30 pm Eastern

See our Terms & Conditions and Privacy Policy.

 
Wow!
Cost to Build Reports
Only $1.99 Right Now
Use Code CTBFALL
Our Cost to Build Report gives you a personalized estimate for building your home, based on your location, plan, and materials.
Get Cost To Build Report
Limit one per order.

Residential Construction Guide

Learn Building Basics

This downloadable, 26-page guide is full of diagrams and details about plumbing, electrical, and more.

PLAN 58-127

This plan can be customized

Tell us about your desired changes so we can prepare an estimate for the design service. Click the button to submit your request for pricing, or call 1-866-445-9085 for assistance.

Modify This Plan

Plan Description


This ranch design floor plan is 1267 sq ft and has 3 bedrooms and 2 bathrooms.

Full Specs & Features


Dimension

Depth : 40'

Height : 16'

Width : 62'

Area

Basement Unfinished: 1150 sq/ft

First Floor: 1267 sq/ft height 8'

* Total Square Footage typically only includes conditioned space and does not include garages, porches, bonus rooms, or decks.

Ceiling

Main Ceiling : 8'

Roof

Primary Pitch : 6:12

Roof Framing : Truss

Roof Type : Shingle

Exterior Wall Framing

Exterior Wall Finish : Brick/Siding

Framing : Wood - 2x4

Bedroom Features

Walk In Closet

Kitchen Features

Eating Bar

Lot Characteristics

Suited For View Lot

Outdoor Spaces

Covered Front Porch

What's Included In This Plan Set


Plans are typically drawn to ¼” scale and include:
  • Foundation Plan(s): 1/4" scale fully dimensioned foundation/basement plan. Also includes "future finish" recreation room, 1 or 2 bedrooms, bathroom and storage areas. Extra Items like fireplaces and wet bars are indicated as "optional".
  • Floor Plan(s): Detailed plans for each level showing room dimensions, wall partitions, windows and doors, fixture locations, and ceiling treatments.
  • Exterior Elevations: 1/4 inch scale elevations all the way around clarifies construction and helps with estimating materials and costs.
  • Overhead Roof Plan(s): An eighth-inch scale "Birds-eye" view of the roof helps to simplify construction by showing all the valleys, hips, ridges etc.
  • Cross Section(s): Complete front to back cross section with basic framing details. If included, the framing layout is intended to be a suggested layout only. Design loads and weather conditions vary by region. As a result the size, spacing, and layout of all structural elements in this home design may need approval by a structural engineer or code official based on your specific site location.
  • Electrical Plan(s): Shown right on the floor plan, switches and outlets are located using standards of the National Electrical Code.
  • Kitchen Cabinet Elevation(s): Detailed drawings of kitchen cabinet elevations. 1/2" scale.
  • Construction Notes / Detail(s): Shows basic parts and assemblies recommended for the home so the builder can see how things come together.
  • Stair Detail(s): Drawings showing stair details. 1/2" scale. May also include fireplace details.
» See important information before purchasing.
Questions? Call 1-866-445-9085

Plan Set

PDF Set:
$760.75
PDF plan sets are best for fast electronic delivery and inexpensive local printing.
5 Copy Set:
$973.25
5 printed plan sets mailed to you.

Foundation

Basement:
$0.00
Ideal for level lot, lower level of home partially or fully underground.
Crawlspace:
$255.00
Ideal for semi-sloped or level lot, home can be built off of grade, typically 18” - 48”.
Slab:
$255.00
Ideal for level lot, single layer concrete poured directly on grade.

Framing

Wood 2x4:
$0.00
Wood 2x4 Exterior Walls
Wood 2x6:
$85.00
Wood 2x6 Exterior Walls

Additional Options

Right-Reading Reverse:
$127.50
Choose this option to reverse your plans and to have the text and dimensions readable.
Additional Construction Sets:
$63.75
Additional hard copies of the plan (can be ordered at the time of purchase and within 90 days of the purchase date).
Audio Video Design:
$140.25
Receive an overlay sheet with suggested placement of audio and video components.
Comprehensive Material List:
$250.75
A complete list of building supplies needed to construct the infrastructure of your new house, plus an overlay of materials shown directly on your PDF (foundation to rooftop with interior and exterior materials), and a detailed, itemized door and window schedule showing all sizes and types. Please allow 5-7 Business Days for completion. Note, the Comprehensive list is only available with a PDF purchase. The Comprehensive list can be ordered no matter what additional plan options you have selected.
Construction Guide:
$33.15
Educate yourself about basic building ideas with these four detailed diagrams that discuss electrical, plumbing, mechanical, and structural topics.
Lighting Design:
$140.25
Receive an overlay sheet with suggested placement of lighting fixtures.

* Alternate Foundations may take time to prepare.

** Options with a fee may take time to prepare. Please call to confirm.

Unless you buy an “unlimited” plan set or a multi-use license you may only build one home from a set of plans. Please call to verify if you intend to build more than once. Plan licenses are non-transferable and cannot be resold.