- Jump to:
- All (24)
- Floor plans (4)
Key Specs
1232
sq ft
2
Beds
2
Baths
1
Floors
2
Garages
Phone: 1-866-445-9085
See our Terms & Conditions and Privacy Policy.
Use Code CTBFALL
Residential Construction Guide
Learn Building Basics
This downloadable, 26-page guide is full of diagrams and details about plumbing, electrical, and more.
PLAN 126-239
This plan can be customized
Tell us about your desired changes so we can prepare an estimate for the design service. Click the button to submit your request for pricing, or call 1-866-445-9085 for assistance.
Plan Description
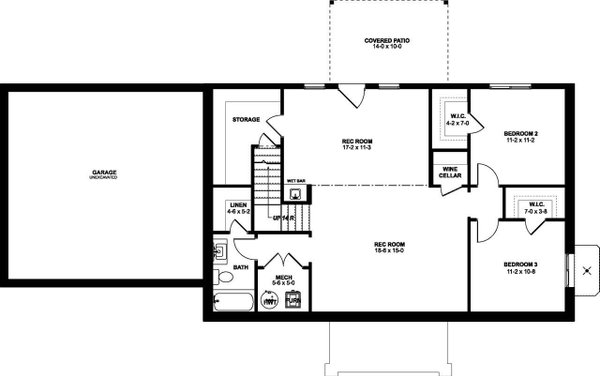
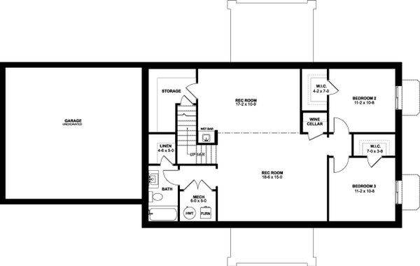
Floor Plans
Full Specs & Features
Dimension
Depth : 44'
Height : 20' 1"
Width : 68'
Area
Garage : 576 sq/ft
Main Floor : 1232 sq/ft
Porch : 224 sq/ft
Ceiling
Ceiling Details : Optional vaulted ceiling in Living Room and Kitchen (Top of vault 13'-6")
Garage Ceiling : 9' 4"
Main Ceiling : 9'
Roof
Primary Pitch : 8/12
Roof Framing : Truss
Roof Load : 55
Roof Type : Standard and Scissor
Secondary Pitch : 8/12
Exterior Wall Framing
Exterior Wall Finish : Siding
Framing : 2x6 or 2x4
Insulation : Batt
Bedroom Features
Guest Suite
Main Floor Bedrooms
Main Floor Master Bedroom
Split Bedrooms
Walk In Closet
Kitchen Features
Kitchen Island
Walk In Pantry Cabinet Pantry
Additional Room Features
Den Office Study Computer
Great Room Living Room
Main Floor Laundry
Master Sitting Area
Mud Room
Garage Features
Front Entry Garage
Oversized Garage
Lot Characteristics
Suited For Sloping Lot
Suited For View Lot
Outdoor Spaces
Covered Front Porch
Covered Rear Porch
Screened Porch
More
Economical To Build
Empty Nester
Wheelchair Adaptable
Energy Efficient Features
Energy Efficient Design
What's Included In This Plan Set
- Cover Sheet: Designer contact info, plan name/number, legal disclaimers.
- Foundation Plan(s): This page shows all necessary notations and dimensions including footings, support columns, walls, and excavated/unexcavated areas.
- Floor Plan(s): Detailed plans for each level showing room dimensions, wall partitions, windows and doors, fixture locations, and ceiling treatments.
- Exterior Elevations: Views of the home from all four sides showing exterior materials, roof slope, ridge heights, siding and trim notes.
- Overhead Roof Plan(s): A view of the home from above showing roof pitch, peaks, valleys, and other details.
- Cross Section(s): A slice of the home from roof to foundation, showing relationships between floors, roof, and foundation.
- Building Section(s): Shows the relationship between different levels, wall heights, and the overall building volume. May include details like foundation, framing, insulation, and finishes.
- Electrical Plan(s): Including lighting fixture placement
- Construction Notes and Detail(s): Shows basic parts and assemblies recommended for the home so the builder can see how things come together.
Plan Set
$1015.75
$1228.25
$1440.75
Foundation
$0.00
$0.00
$0.00
$0.00
$212.50
$212.50
Framing
$0.00
$0.00
Additional Options
$170.00
$46.75
$140.25
$33.15
$140.25
$106.25
* Alternate Foundations may take time to prepare.
** Options with a fee may take time to prepare. Please call to confirm.
 
 
                 
                         
                         
                         
                         
                 
                 
                 
                 
                 
                 
                 
                 
                 
                 
                         
                        