- Jump to:
- All (7)
- Floor plans (2)
Key Specs
1143
sq ft
1
Beds
1.5
Baths
2
Floors
3
Garages
Phone: 1-866-445-9085
See our Terms & Conditions and Privacy Policy.
Residential Construction Guide
Learn Building Basics
This downloadable, 26-page guide is full of diagrams and details about plumbing, electrical, and more.
PLAN 932-1187
This plan can be customized
Tell us about your desired changes so we can prepare an estimate for the design service. Click the button to submit your request for pricing, or call 1-866-445-9085 for assistance.
Plan Description
Floor Plans
Full Specs & Features
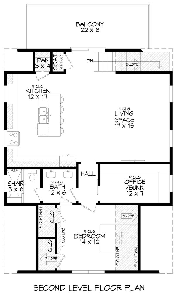
Dimension
Depth : 48'
Height : 27' 11"
Width : 40'
Area
Decks : 176 sq/ft
Garage : 1076 sq/ft
Lower Floor : 124 sq/ft
Porch : 387 sq/ft
Upper Floor : 1019 sq/ft
Ceiling
Main Ceiling : 11'
Upper Ceiling Ft : 9'
Roof
Primary Pitch : 12:12
Roof Framing : Conventional
Roof Load : 90
Roof Type : Gable
Secondary Pitch : 4:12
Exterior Wall Framing
Exterior Wall Finish : siding/wood
Framing : 2x6
Bedroom Features
Main Floor Master Bedroom
Walk In Closet
Kitchen Features
Eating Bar
Kitchen Island
Additional Room Features
Main Floor Laundry
Storage Area
Workshop
Garage Features
Front Entry Garage
Outdoor Spaces
Covered Front Porch
What's Included In This Plan Set
- Foundation Plan(s): This page shows all necessary notations and dimensions including support columns, walls, and excavated/unexcavated areas.
- Floor Plan(s): Detailed plans for each level showing room dimensions, wall partitions, windows and doors sizes, joist directions and beam locations.
- Exterior Elevations: Views of the home from all four sides showing exterior materials, roof slope, ridge heights, siding and trim notes.
- Overhead Roof Plan(s): A view of the home from above showing roof pitch, peaks, valleys, and other details.
- Cross Section(s): A slice of the home from roof to foundation, showing relationships between floors, roof, and foundation.
- Construction Notes / Detail(s): Shows basic parts and assemblies recommended for the home so the builder can see how things come together.
Plan Set
$1708.50
$1785.00
$1861.50
$1524.90
Foundation
$0.00
Framing
$0.00
$148.75
Additional Options
$148.75
$25.50
$140.25
$33.15
$140.25
$250.75
$212.50
$306.00
* Alternate Foundations may take time to prepare.
** Options with a fee may take time to prepare. Please call to confirm.
 
 
                 
                         
                         
                 
                 
                 
                 
                 
                 
                 
                 
                 
                