Don't lose your saved plans!  Create an account to access your saves whenever you want. See our Terms & Conditions and Privacy Policy.
ON SALE!

PLAN 22-603

Photographs may show modified designs.

Save
  • Jump to:
  • All (7)
  • Floor plans (2)
Questions? Get Personalized Help

Key Specs


Plan Sq Ft

1054
sq ft

Plan Bedrooms

1
Beds

Plan Bathrooms

1.5
Baths

Plan Floors

2
Floors

Plan Garages

1
Garages

Select Plan Set Options

What's included?
$63.75
Additional Construction Sets$21.25/each

Additional hard copies of the plan (can be ordered at the time of purchase and within 90 days of the purchase date).

$85.00
$33.15
$59.50
Subtotal
NOW $476.00
You save $84.00 (15% savings)
Sale ends soon!
Best Price Guaranteed*
Also order by phone: 1-866-445-9085
 
Questions about building your home?
Get Personalized Help
We do our best to get back to you within 24 - 48 business hours.
Need an answer faster? Call now...
Phone: 1-866-445-9085
Hours:
Ready for Your Call 7 Days a Week
Every Day 7 am - 8:30 pm Eastern

See our Terms & Conditions and Privacy Policy.

 
Wow!
Cost to Build Reports
Only $1.99 Right Now
Use Code CTBFALL
Our Cost to Build Report gives you a personalized estimate for building your home, based on your location, plan, and materials.
Get Cost To Build Report
Limit one per order.

Residential Construction Guide

Learn Building Basics

This downloadable, 26-page guide is full of diagrams and details about plumbing, electrical, and more.

PLAN 22-603

This plan can be customized

Tell us about your desired changes so we can prepare an estimate for the design service. Click the button to submit your request for pricing, or call 1-866-445-9085 for assistance.

Modify This Plan

Plan Description


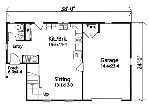
This country design floor plan is 1054 sq ft and has 1 bedrooms and 1.5 bathrooms.

Full Specs & Features


Dimension

Depth : 24'

Height : 25'

Width : 38'

Area

Garage : 334 sq/ft

Main Floor : 492 sq/ft

Upper Floor : 562 sq/ft

* Total Square Footage typically only includes conditioned space and does not include garages, porches, bonus rooms, or decks.

Ceiling

Main Ceiling : 9'

Upper Ceiling Ft : 8'

Roof

Primary Pitch : 12/12

Roof Framing : Truss

Roof Load : 40 psi

Roof Type : Shingle

Secondary Pitch : 6/12

Exterior Wall Framing

Exterior Wall Finish : Lap sidiing

Framing : 2 x 4

Insulation : R-13

Bedroom Features

Fireplace

Upstairs Bedrooms

Additional Room Features

Den Office Study Computer

Great Room Living Room

Lot Characteristics

Suited For Narrow Lot

More

Economical To Build

What's Included In This Plan Set


  • Foundation Plan(s): This page shows all necessary notations and dimensions including footings, support columns, walls, and excavated/unexcavated areas.
  • Floor Plan(s): Detailed plans for each level showing room dimensions, wall partitions, windows and doors, fixture locations, and ceiling treatments.
  • Exterior Elevations: Views of the home from all four sides showing exterior materials, roof slope, ridge heights, siding and trim notes.
  • Overhead Roof Plan(s): A view of the home from above showing roof pitch, peaks, valleys, and other details.
  • Cross Section(s): A slice of the home from roof to foundation, showing relationships between floors, roof, and foundation.
  • Electrical Plan(s): Shows the location of lights, receptacles, switches, etc. Some plans that do not include an electrical plan may have it available for an additional fee.
  • Kitchen Cabinet Elevation(s): Detailed drawings of kitchen cabinet elevations.
  • Construction Notes / Detail(s): Shows basic parts and assemblies recommended for the home so the builder can see how things come together.
  • Wall Section(s): Detailed drawings showing wall connections, from foundation to the roof, wall connections to foundation, window installation, siding installation, stair details, and more.
  • Stair Detail(s): Drawings showing stair details.
» See important information before purchasing.
Questions? Call 1-866-445-9085

Plan Set

PDF Set:
$476.00
PDF plan sets are best for fast electronic delivery and inexpensive local printing.
CAD Set:
$565.25
For use by design professionals to make substantial changes to your house plan and inexpensive local printing.

Foundation

Slab:
$0.00
Ideal for level lot, single layer concrete poured directly on grade.

Framing

Wood 2x4:
$0.00
Wood 2x4 Exterior Walls
Wood 2x6:
$63.75
Wood 2x6 Exterior Walls

Additional Options

Right-Reading Reverse:
$63.75
Choose this option to reverse your plans and to have the text and dimensions readable.
Additional Construction Sets:
$21.25
Additional hard copies of the plan (can be ordered at the time of purchase and within 90 days of the purchase date).
Audio Video Design:
$85.00
Receive an overlay sheet with suggested placement of audio and video components.
Construction Guide:
$33.15
Educate yourself about basic building ideas with these four detailed diagrams that discuss electrical, plumbing, mechanical, and structural topics.
Material List:
$59.50
A spreadsheet of building supplies needed to construct the infrastructure of your new house. Please note materials lists will not reflect add-ons such as alternate foundation and framing options.

* Alternate Foundations may take time to prepare.

** Options with a fee may take time to prepare. Please call to confirm.

Unless you buy an “unlimited” plan set or a multi-use license you may only build one home from a set of plans. Please call to verify if you intend to build more than once. Plan licenses are non-transferable and cannot be resold.