- Jump to:
- All (3)
- Floor plans (1)
Key Specs
1042
sq ft
3
Beds
2
Baths
1
Floors
1
Garages
Phone: 1-866-445-9085
See our Terms & Conditions and Privacy Policy.
Use Code CTBFALL
Residential Construction Guide
Learn Building Basics
This downloadable, 26-page guide is full of diagrams and details about plumbing, electrical, and more.
PLAN 456-77
This plan can be customized
Tell us about your desired changes so we can prepare an estimate for the design service. Click the button to submit your request for pricing, or call 1-866-445-9085 for assistance.
Plan Description
Floor Plans
Full Specs & Features
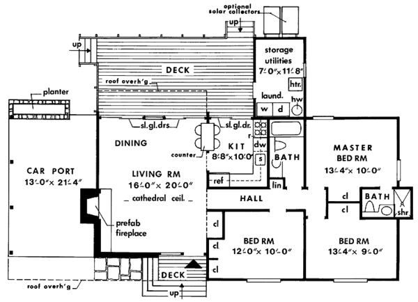
Dimension
Depth : 36' 4"
Width : 57' 8"
Area
First Floor: 1042 sq/ft height 8'
Roof
Primary Pitch : 6:12
Roof Framing : Conventional
Exterior Wall Framing
Exterior Wall Finish : Siding
Framing : Wood - 2x4
Bedroom Features
Fireplace
Main Floor Master Bedroom
Additional Room Features
Great Room Living Room
Outdoor Spaces
Covered Rear Porch
Deck
What's Included In This Plan Set
- Exterior Elevations: showing the front, rear, and side views with standard and alternate material choices; all elevations are usually ¼" scale.
- Foundation plans: separate foundation plans are usually provided for a basement/crawl space, and slab, unless otherwise noted. All are drawn at ¼" scale and include first floor framing information for basement/crawl spaces, including beams, girders, columns and piers. Some plans include walk-out(daylight) basement options as well.
- Floor plans: ¼" scale for each floor, including all room dimensions, door and window sizes and locations, stairways, kitchens, baths, etc. Framing information for stick framed ceiling beams and/or second floor framing is included.
- Cross sections: ¼" scale cut-away views for each distinct area, showing all framing, ceiling details, heights, roof pitches, etc.
- Roof plan: a separate roof plan is usually provided showing all pitches, rafter sizes, valley, hip and ridge locations, and areas of double roof framing.
- Schematic electrical: shows suggested locations for outlets, switches and fixtures on either a separate drawing or directly on the floor plans.
- Kitchen cabinets: schematic drawings of all kitchen cabinets.
- Specifications: a separate 8 page outline specification of most materials, construction methods and techniques, in a format for customizing; for use in obtaining bids and as a contract document.
- Standard details: 2 additional drawing pages filled with standard construction details.
- Energy conservation details: 2 more drawing pages chock full of drawings and ideas on how to build to conserve energy.
- Making changes: finally we include a separate 6 page primer on choosing a contractor and making changes, as virtually everyone makes some changes in building their home.
Plan Set
$739.50
$833.00
$896.75
$905.25
Foundation
$0.00
$0.00
$85.00
Framing
$0.00
$127.50
Additional Options
$297.50
$42.50
$85.00
$33.15
$80.75
* Alternate Foundations may take time to prepare.
** Options with a fee may take time to prepare. Please call to confirm.
 
 
                 
                         
                 
                 
                 
                 
                 
                 
                 
                 
                 
                